High-spec, energy-efficient family home with roof terrace and convenient town access.
1. 1,824 sq ft three-storey Knightsley layout, four bedrooms
2. EPC A, solar panels and EV charging fitted
3. Underfloor heating, premium kitchen and upgraded fixtures
4. Top-floor principal suite with dressing area and roof terrace
5. Integral garage, driveway parking and private rear garden
6. Small plot and modest rear garden for larger family use
7. Mid-terrace location within a new-development cul-de-sac
8. Local crime rates above average; mixed secondary school performance
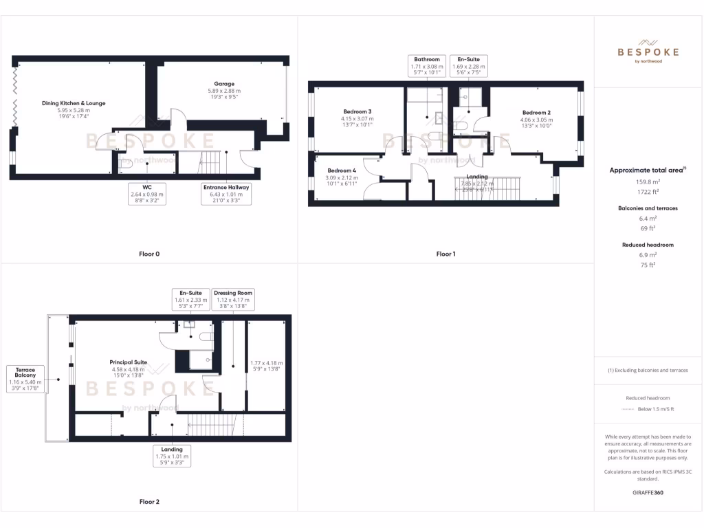
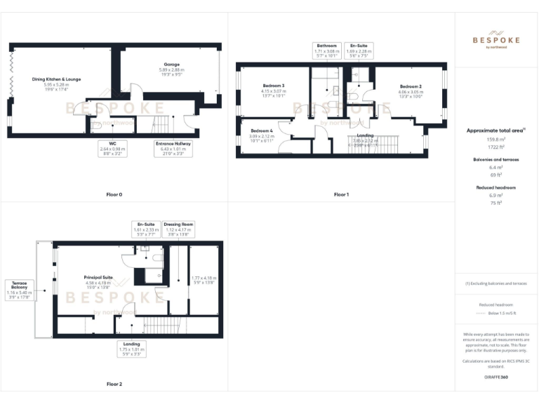
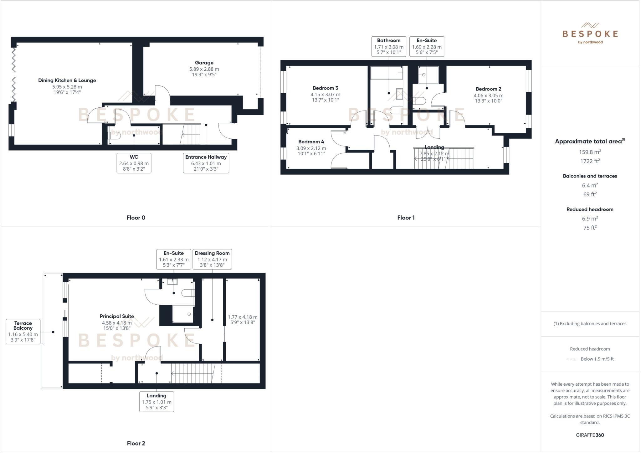
A larger-than-average four-bedroom town house in Phase One of Knights View, offering 1,824 sq ft across three floors and high-spec contemporary finishes. The Knightsley layout includes an integral garage, private rear garden, and a top-floor principal suite with dressing area, en-suite and a private roof terrace overlooking nearby green space.
The home is built to modern energy standards with EPC A, solar panels and EV charging installed, underfloor heating on lower levels, oversized windows and premium kitchen and bathroom fittings. Its position in a quiet cul-de-sac keeps you minutes from Macclesfield town centre and the train station, useful for commuters and families alike.
Practical points to note: the plot and garden are modest in size and the property is a mid-terrace within a development where over 50% have already sold. Local crime levels are above average for the area and the wider locality includes mixed-performing secondary provision, though several good and outstanding primary and independent schools are nearby. Overall this is a high-spec, energy-efficient family home with desirable outdoor terraces and low running costs, but with limited private outdoor space and the usual proximity trade-offs of a town-centre development.
4 bedroom town house for sale in The Knightsley | Knights View, Macclesfield, SK11 — £415,000 • 4 bed • 3 bath • 1722 ft²
3 bedroom town house for sale in Windmill Street, Macclesfield, SK11 — £350,000 • 3 bed • 2 bath • 1033 ft²
4 bedroom town house for sale in Greenhills Close | Knights View, Macclesfield, SK11 — £415,000 • 4 bed • 3 bath • 1722 ft²
2 bedroom town house for sale in Canal Street, Macclesfield, SK10 — £280,000 • 2 bed • 2 bath • 505 ft²
2 bedroom town house for sale in The Baths, Canal Street, Macclesfield, SK10 — £300,000 • 2 bed • 2 bath • 505 ft²
3 bedroom end of terrace house for sale in Fence Avenue,
Macclesfield,
Cheshire,
SK10 1LT, SK10 — £368,000 • 3 bed • 1 bath • 742 ft²


































































































