Affordable three-bedroom terrace in Princethorpe — vacant and chain-free, ideal for first-time buyers.
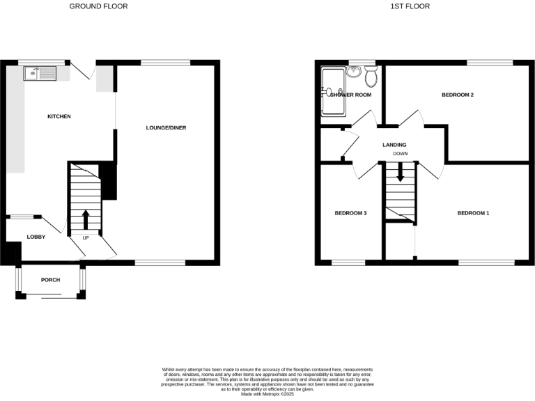
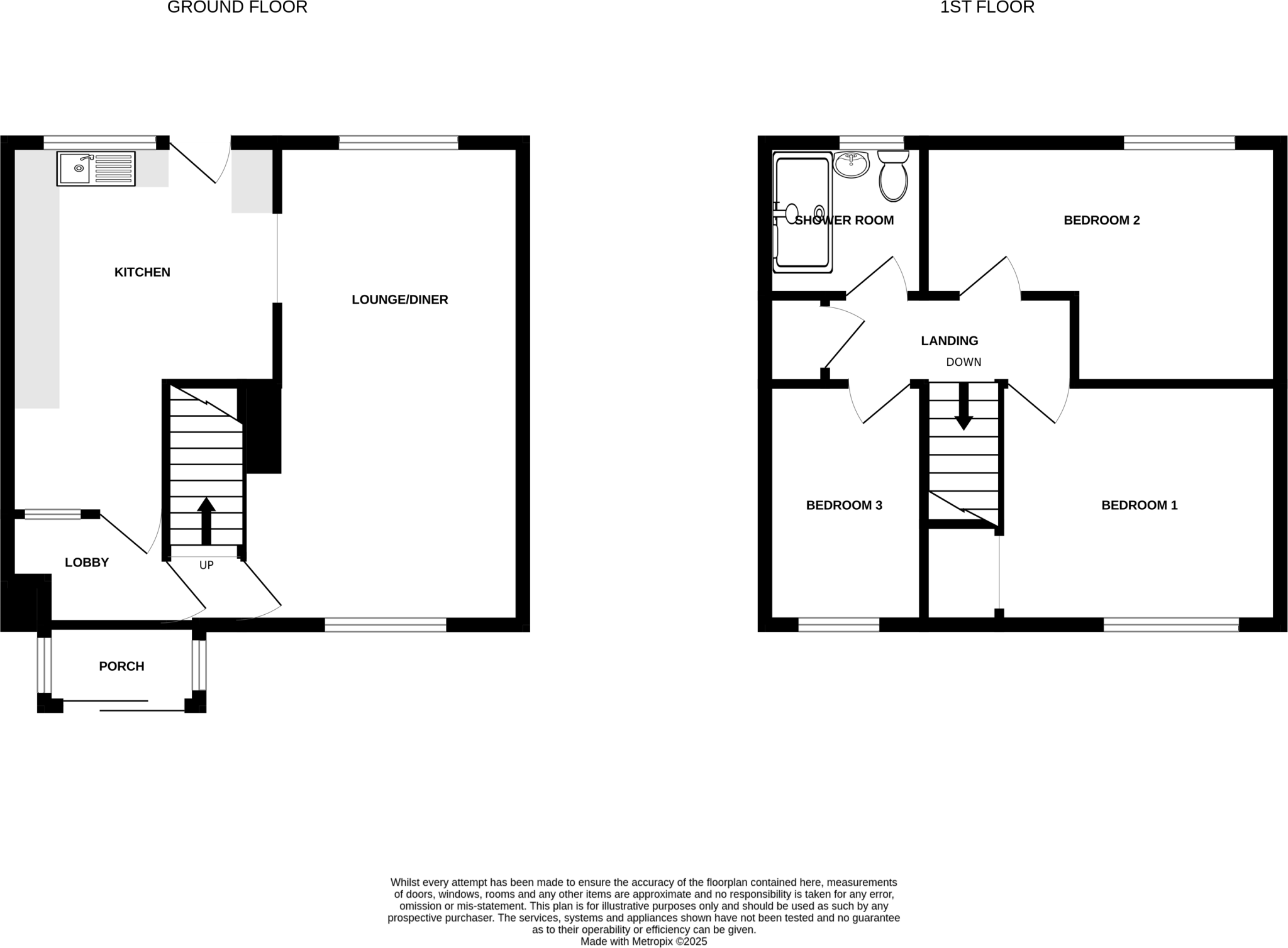
Three bedrooms with spacious lounge/diner and fitted kitchen
Set in the peaceful village of Princethorpe, this three-bedroom mid-terrace offers an affordable entry into village life with no onward chain and vacant possession. The home provides a spacious lounge/diner, fitted kitchen and a modern walk-in shower room across an average-sized 829 sq ft layout — practical for a first-time buyer or investor seeking rental potential.
The property benefits from double glazing and a simple, neutral interior ready for cosmetic updating. Outside there are front and rear gardens; the rear is small and currently requires garden maintenance. Heating is by electric room heaters and the building is a mid‑20th century system-built construction with assumed lack of wall insulation, which may affect running costs and future improvement plans.
Practical considerations: broadband speeds are slow, mobile signal is excellent, and council tax is low. There is a public notice of an offer recorded, and the property has a public notice/repossession flag; prospective buyers should verify legal status and seek conveyancing advice. This is a straightforward purchase for buyers comfortable with modest renovation or investors seeking a let-ready village home.
3 bedroom terraced house for sale in Fosse Crescent, Princethorpe, Rugby, CV23 — £200,000 • 3 bed • 1 bath • 824 ft²
3 bedroom semi-detached house for sale in Coronation Cottages, Princethorpe, Rugby, CV23 — £340,000 • 3 bed • 1 bath • 1173 ft²
2 bedroom cottage for sale in Leamington Road, Princethorpe, Rugby, CV23 — £300,000 • 2 bed • 1 bath • 1701 ft²
3 bedroom semi-detached house for sale in Princethorpe Way, Binley, Coventry, CV3 2ND, CV3 — £290,000 • 3 bed • 2 bath • 836 ft²
2 bedroom park home for sale in Hilltop Park, Princethorpe, CV23 — £160,000 • 2 bed • 1 bath • 617 ft²
3 bedroom terraced house for sale in Hamilton Road, Stoke, Coventry, CV2 — £185,000 • 3 bed • 1 bath • 799 ft²






















































