HP5 1RJ - 1 bedroom flat for sale in Chesham, Buckingahamshire, HP5

View on Property Piper

1 bedroom flat for sale in Chesham, Buckingahamshire, HP5

Summary - ROSE COURT FLAT 11 CHESSMOUNT RISE CHESHAM HP5 1RJ

1 bed 1 bath Flat

**Standout Features:**
- Shared ownership opportunity (50%)
- One-bedroom maisonette with private rear garden
- Allocated off-street parking for one vehicle
- Chain-free sale with 122 years remaining on lease
- Low crime rate and affluent neighborhood
- Nearby outstanding schools

**Property Summary:**
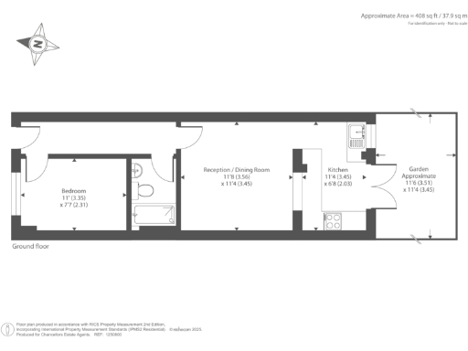
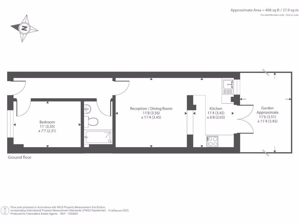
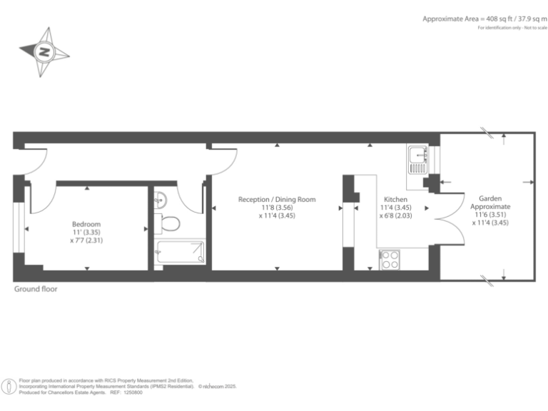
Discover the perfect blend of comfort and convenience with this charming one-bedroom maisonette, ideal for first-time buyers or investors seeking a low-maintenance home in a desirable area. Some key highlights include a private rear garden, allocated parking, and no onward chain, offering a seamless transition into your new home. The property boasts a compact 419 sq ft layout that optimizes space, featuring a sitting/dining room, cozy kitchen, and a bathroom.

While the maisonette has a small footprint, the appeal lies in the potential for personalization and investment in a thriving, family-friendly neighborhood. With shared ownership available at just £92,500, plus low ground rent and service charge managed with the rental payment, this opportunity offers remarkable affordability amidst a backdrop of excellent amenities and educational options.

Although the property is from the post-war era and features solid brick construction with no insulation, it benefits from double glazing and mains gas heating, ensuring comfort all year round. Act swiftly to secure this gem in HP5—opportunities like this don’t last long!

Property Details

Image Descriptions

Floorplan Description

Rooms

Textual Property Features

Detected Visual Features

EPC Details

Nearby Schools

Nearest Bars And Restaurants

,,,,}

Nearest General Shops

,,}

Nearest Grocery shops

,,}

Nearest Supermarkets

,,}

Nearest Religious buildings

,,}

Nearest Medical buildings

,,,}

Nearest Airports

}

Nearest Leisure Facilities

,,,,}

Nearest Tourist attractions

,,}

Nearest Train stations

,,,,}

Nearest Bus stations and stops

,,,,}

Nearest Hotels

,,}

Tags

Local Market Stats

AirBnB Data

Similar Properties

Meta

High Res Images

Compatible Images

Low res Images

Thumbnails

Raw Images

High Res Floorplan Images

Compatible Floorplan Images

Low res Floorplan Images

FloorplanImages Thumbnail

Raw Floorplan Images