Large central Bournemouth flat with strong rental potential and parking.
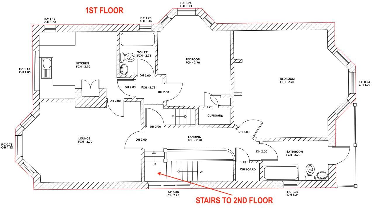
4 Double bedrooms throughout with large reception and room for reconfiguration
Brand-new 999-year lease granted on completion; freehold title
Off-street parking for two cars plus a garden and separate garage
No letting restrictions; Airbnb and pets permitted under lease
Requires modernization — dated kitchen and some rooms need updating
Sold at online auction; 5% deposit, buyers’ premium and 56-day completion
Public notice/repossession recorded—check legal pack for details
Potential to add second bathroom or split into flats (subject to planning)
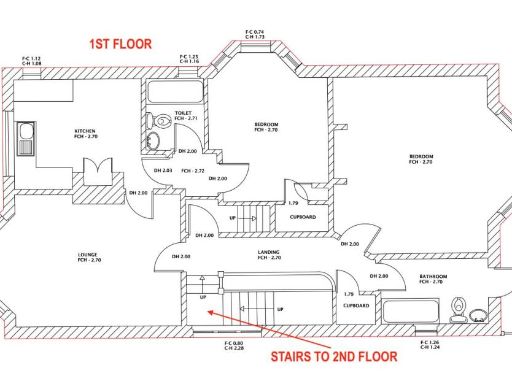
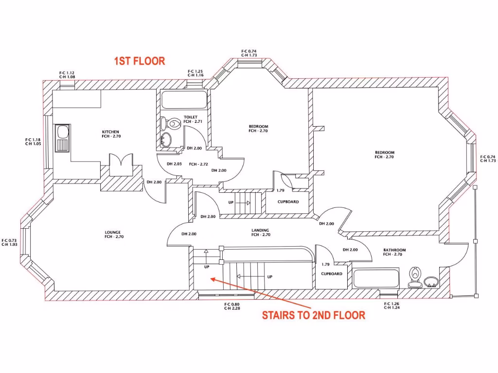
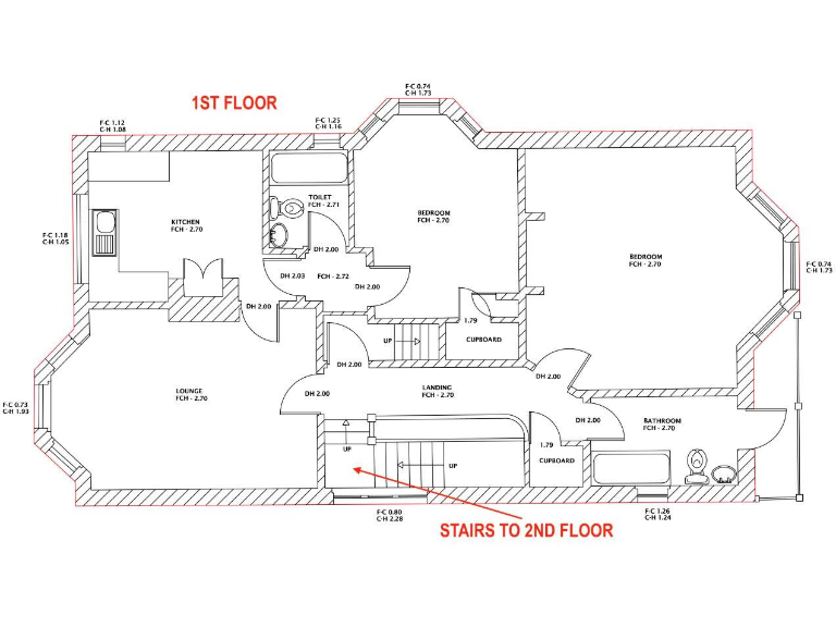
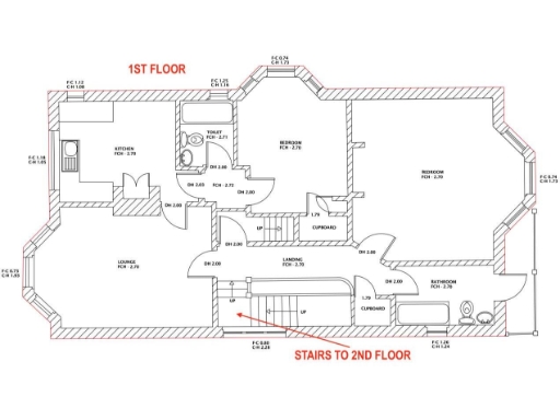
This large first/second-floor maisonette offers four double bedrooms, extensive living space and genuine redevelopment potential. A brand-new 999‑year lease will be granted on completion, and the freehold sale includes off‑street parking and a garden — useful extras in this central Bournemouth location. The property permits short‑term lets and has no letting restrictions, so it suits investors or buyers wanting rental or Airbnb income.
The interior retains period character but needs modernization: the kitchen and some rooms are dated and the layout currently provides scope to add a second bathroom or reconfigure into separate flats (subject to planning). Buyers should factor refurbishment costs and check the legal pack for the auction special conditions and any service charges before bidding.
Sale is by unconditional online auction with a buyers’ premium, immediate 5% deposit on fall of the hammer and completion required within 56 days. There is a public notice/repossession recorded against the lot — this and other special conditions are detailed in the legal documents and must be reviewed prior to bidding.
Practical positives include parking for two cars, pet permissions, excellent mobile and fast broadband, low crime and cheap council tax. For buyers seeking a roomy, long‑lease investment with uplift potential, this property offers clear upside once modernised.
2 bedroom apartment for sale in Ground Floor Flat, 4 Bryanstone Road, Bournemouth, Dorset, BH3 7JE, BH3 — £200,000 • 2 bed • 1 bath
5 bedroom maisonette for sale in 8A Beechwood Avenue, Boscombe Manor, Bournemouth, Dorset, BH5 1LX, BH5 — £275,000 • 5 bed • 2 bath • 2062 ft²
2 bedroom flat for sale in Flat 5 Norfolk House, 6-8 Norwich Avenue, Bournemouth, Dorset, BH2 5TQ, BH2 — £75,000 • 2 bed • 1 bath
4 bedroom apartment for sale in Crabton Close Road, Bournemouth, BH5 — £200,000 • 4 bed • 1 bath • 838 ft²
4 bedroom flat for sale in Flat 52, Bath Hill Court, Bath Road, Bournemouth, Dorset BH1 2HS, BH1 — £300,000 • 4 bed • 2 bath • 1622 ft²
2 bedroom flat for sale in 7B West Borough, Wimborne, Dorset, BH21 1LT, BH21 — £100,000 • 2 bed • 1 bath • 532 ft²






























































