Walking distance to Sutton centre and top local schools, ideal for family life.
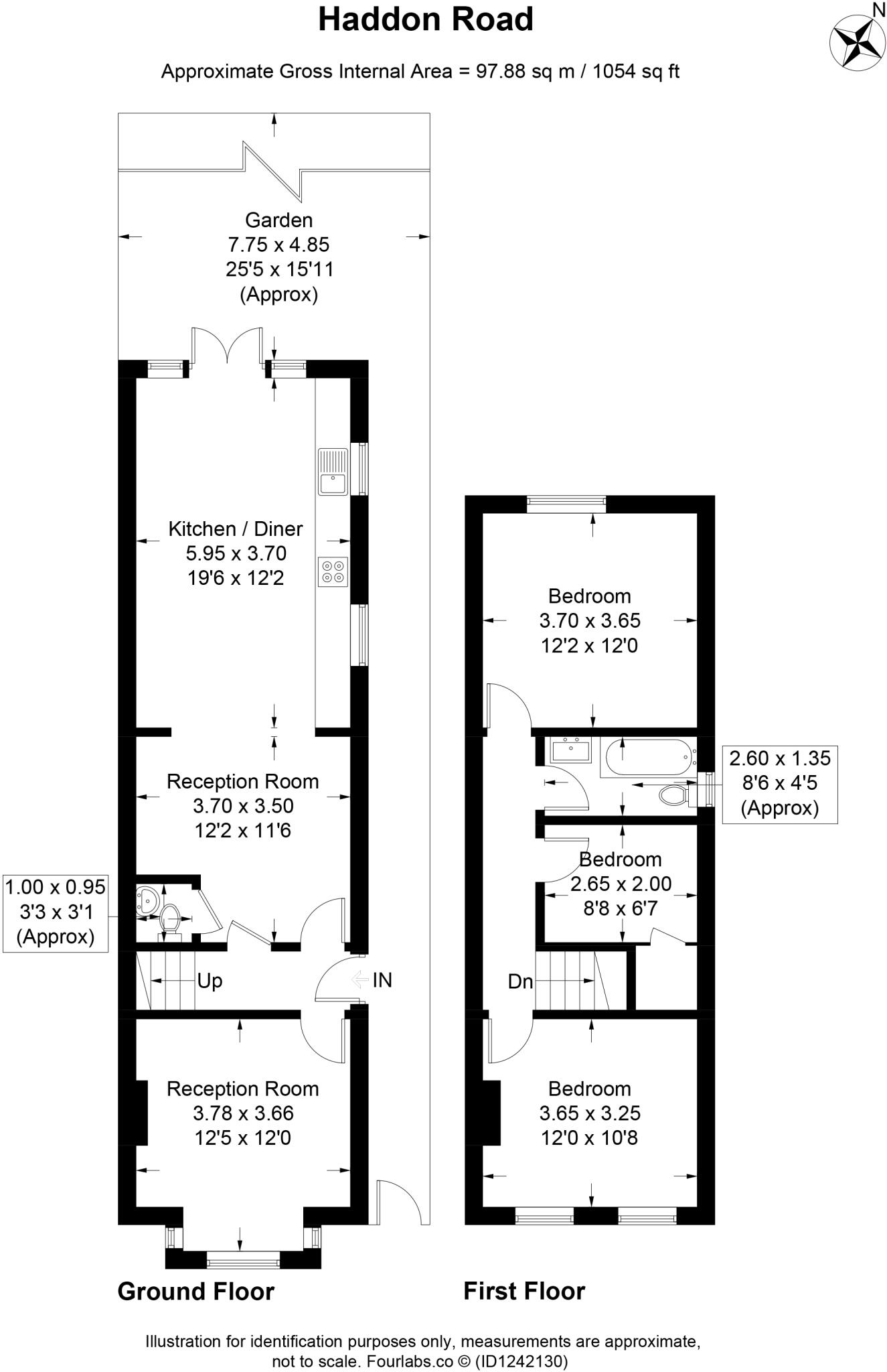
Three bedrooms and two reception rooms, period features and high ceilings
Private rear paved garden; small, low-maintenance plot
Open-plan kitchen/diner, modern fixtures and integrated appliances
Freehold tenure; EPC rating D (energy upgrades recommended)
On-street resident permit parking; no private driveway
Solid brick walls likely uninsulated — potential higher heating costs
Located within walking distance of Sutton town centre and good schools
Area has higher crime and relative deprivation — consider local checks
This three-bedroom Victorian semi sits within walking distance of Sutton town centre and strong local schools, making it well suited to growing families. The house offers two reception rooms, an open-plan kitchen/diner and a private rear garden laid out as a paved courtyard — practical and low-maintenance. The interior shows period features, high ceilings and a well-presented finish throughout.
Practical details are clear: freehold tenure, EPC rating D and mains gas central heating via boiler and radiators. The plot and rooms are average-sized for the area; on-street parking with resident permits is available rather than private off-street spaces. Broadband and mobile signal are good, supporting home working and modern connectivity.
Buyers should note material drawbacks: the property sits in an area with higher crime and relative deprivation, and the solid-brick walls are likely uninsulated (typical of the build era), which may increase heating costs unless upgraded. The garden is small and parking is on-street only. Overall, this is a practical family home with period character and scope for energy-efficiency improvements or modest refurbishment to add value.
3 bedroom end of terrace house for sale in Bushey Road, Sutton, SM1 — £650,000 • 3 bed • 1 bath • 1354 ft²
4 bedroom semi-detached house for sale in Lenham Road, Sutton, SM1 — £635,000 • 4 bed • 1 bath • 1340 ft²
5 bedroom semi-detached house for sale in Robin Hood Lane, Sutton, SM1 — £725,000 • 5 bed • 1 bath • 1604 ft²
4 bedroom semi-detached house for sale in Beauchamp Road, Sutton, SM1 — £600,000 • 4 bed • 2 bath • 1336 ft²
3 bedroom semi-detached house for sale in Litchfield Road, Sutton, SM1 — £625,000 • 3 bed • 1 bath • 1361 ft²
3 bedroom semi-detached house for sale in Oakhill Road, Sutton, SM1 — £475,000 • 3 bed • 1 bath • 878 ft²


























































































































