Renovated family home with expansive garden and triple garage.
0.4-acre landscaped plot with multiple seating areas
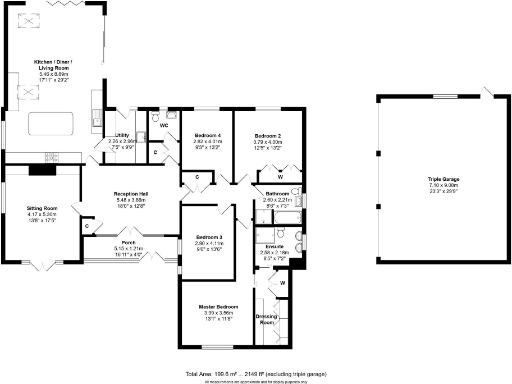
Set on an impressive 0.4-acre plot in the popular village of Gayton, Field Cottage is a spacious four-bedroom detached bungalow reshaped for modern family living. The rear extension creates a striking open-plan kitchen/ dining/ living hub with vaulted ceiling, floor-to-ceiling glazing and bi-fold doors that flow straight onto a large patio and landscaped garden — ideal for everyday life and outdoor entertaining. A separate dual-aspect sitting room with a log burner provides a quieter family retreat.
The accommodation includes four generous double bedrooms, the principal suite with dressing area and ensuite, a newly fitted family bathroom and a useful utility and cloakroom. Practical highlights include a large triple garage with remote doors, power, water and loft storage, plus an expansive gated gravel driveway with parking for several cars. The property was extended and much renovated by the current owners within the last five years and offers over 2,100 sq ft of flexible living space.
Buyers should note several material points: heating is provided by an LPG-fired boiler rather than mains gas, drainage is private, and the EPC currently rates the property F. There is a medium flood risk for the location and council tax sits in Band E. The property was built in the early 1990s and double glazing was installed before 2002. These factors should be weighed against the sizable plot, recent renovations and strong family-focused layout when considering suitability and running costs.
5 bedroom cottage for sale in Back Street, Gayton, PE32 — £525,000 • 5 bed • 2 bath • 2671 ft²
4 bedroom detached bungalow for sale in Rosemary Lane, Gayton, PE32 — £475,000 • 4 bed • 3 bath • 2000 ft²
5 bedroom detached house for sale in Acorn Drive, Gayton, King's Lynn, PE32 — £675,000 • 5 bed • 3 bath • 2075 ft²
5 bedroom farm house for sale in Gayton, PE32 — £1,100,000 • 5 bed • 4 bath • 5895 ft²
3 bedroom terraced house for sale in Lynn Road, Gayton, King's Lynn, PE32 — £220,000 • 3 bed • 1 bath • 804 ft²
4 bedroom detached house for sale in Back Street, Gayton, PE32 — £525,000 • 4 bed • 1 bath • 3045 ft²






















































































































































