**Standout Features:**
- Newly constructed 3-bedroom detached house
- Georgian-inspired architecture with attractive brickwork
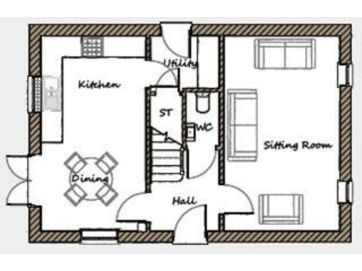
- Spacious open-plan kitchen/dining area with integrated appliances
- Master bedroom with ensuite shower room
- Generous living room with dual-aspect bay window
- Detached garage and ample parking
- Landscaped front garden and turfed rear garden
- 10-year NHBC warranty for peace of mind
- Energy-efficient with an EPC rating of B or above
**Summary:**
Discover modern living in the heart of a vibrant community with this enchanting 3-bedroom detached house in Thorpebury. Boasting 1,025 square feet of carefully designed space, this home artfully blends classic Georgian-inspired aesthetics with contemporary comforts. The open-plan kitchen/dining area, equipped with top-of-the-line Sherwin Hall cabinetry and integrated appliances, is perfect for both everyday living and entertaining, while the dual-aspect living room, flooded with natural light, invites relaxation.
Upstairs, the master bedroom features an ensuite shower room for added convenience, alongside two additional well-sized bedrooms and a family bathroom. The landscaped front garden and green rear space add to the home's appeal. Enjoy the security of a 10-year NHBC warranty and the potential to save significantly on energy bills. Located within a family-friendly environment, you're just moments away from quality primary and secondary schools, parks, and local amenities, ensuring a comfortable lifestyle.
Act quickly—properties like this, combining charm, modern features, and community spirit, won’t be available for long!
3 bedroom detached house for sale in Thorpebury
Off Barkbythorpe Road
Leicester
Leicestershire
LE7 3QP, LE7 — £389,995 • 3 bed • 1 bath
4 bedroom detached house for sale in Thorpebury
Off Barkbythorpe Road
Leicester
Leicestershire
LE7 3QP, LE7 — £529,995 • 4 bed • 1 bath
3 bedroom detached house for sale in Thorpebury
Off Barkbythorpe Road
Leicester
Leicestershire
LE7 3QP, LE7 — £389,995 • 3 bed • 1 bath • 1020 ft²
3 bedroom detached house for sale in 2 Limetree Way,
Thurmaston,
Leicestershire,
LE7 3AX, LE7 — £380,000 • 3 bed • 1 bath • 1046 ft²
4 bedroom detached house for sale in Thorpebury
Off Barkbythorpe Road
Leicester
Leicestershire
LE7 3QP, LE7 — £499,995 • 4 bed • 1 bath
4 bedroom detached house for sale in Thorpebury
Off Barkbythorpe Road
Leicester
Leicestershire
LE7 3QP, LE7 — £499,995 • 4 bed • 1 bath






































































