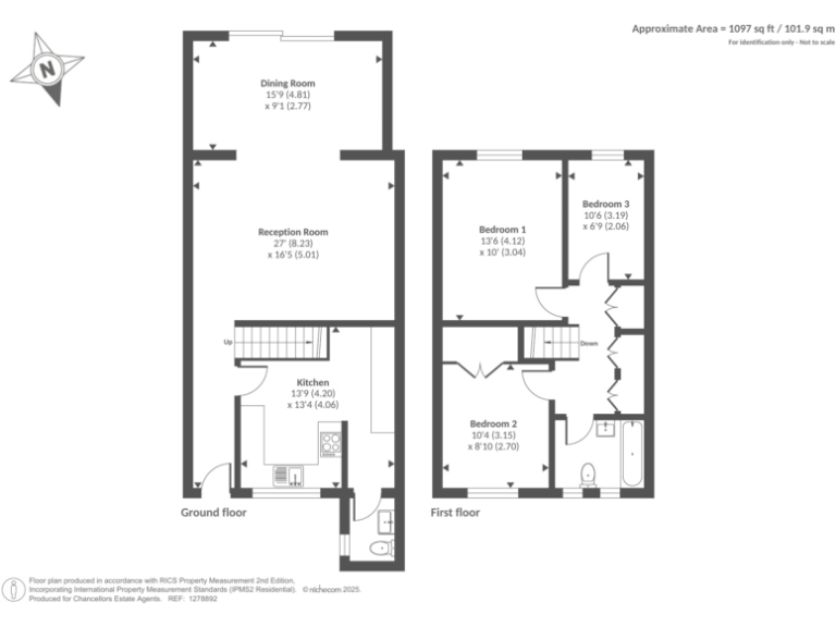
**Standout Features:**
- **3 Bedrooms** with fitted storage
- **Extended Reception Room** with patio doors to private garden
- **Modern Kitchen** with utility area and ground floor W/C
- **Newly Fitted "A" Rated Boiler**
- **Communal Greens View**
**Potential Concerns:**
- Requires modernization
- Some damp issues noted
- Dated facade needing attention
This charming 3-bedroom terraced house in Blackbird Leys, Oxford offers a great opportunity for families or investors looking to create a comfortable living space. Spanning 1,097 square feet, the property features an inviting extended reception room that opens directly onto a private garden, making it ideal for family gatherings or outdoor relaxation. The kitchen is functional and includes a useful utility area, complemented by a convenient ground floor W/C.
Upstairs, you'll find three well-sized bedrooms, all equipped with fitted storage, along with a family bathroom. It's worth noting that while the property has a solid foundation and a newly fitted "A" rated boiler for energy efficiency, it may require some modernization to truly shine. With approachable public transport, essential amenities within walking distance, and a community-centric atmosphere, this residence not only offers living space but also the potential for future enhancements, allowing you to truly make it your own.
Act quickly—properties in this well-connected locale, with views overlooking communal greens, do not stay on the market for long!
3 bedroom terraced house for sale in Blackbird Leys, Oxford, OX4 — £325,000 • 3 bed • 1 bath • 898 ft²
3 bedroom end of terrace house for sale in Blackbird Leys, Oxford, OX4 — £330,000 • 3 bed • 2 bath • 868 ft²
3 bedroom terraced house for sale in Pegasus Road, Oxford, OX4 — £350,000 • 3 bed • 1 bath • 737 ft²
3 bedroom terraced house for sale in Skylark Place, Oxford, OX4 — £330,000 • 3 bed • 1 bath • 905 ft²
3 bedroom terraced house for sale in Balfour Road, OXFORD, OX4 — £375,000 • 3 bed • 1 bath • 980 ft²
3 bedroom end of terrace house for sale in Moorbank, Oxford, OX4 — £330,000 • 3 bed • 2 bath • 1045 ft²


















































































