Chain-free family home with garden and garage close to schools and transport links.
- Three bedrooms with average-sized rooms
- Landscaped private garden and detached garage
- Chain free; vacant possession on completion
- Good local schools and leisure facilities nearby
- Fast broadband and strong commuter transport links
- Mid‑20th century features; dated decor needs modernising
- Appliances and central heating not tested — buyer to verify
- Council Tax Band B; no flood risk
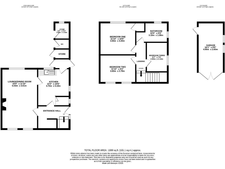
This three-bedroom semi-detached home in Cuddington offers a practical family layout and a detached garage with additional outside stores. The property is chain free and sits close to local shops, good primary and secondary schools, leisure facilities and fast transport links into Chester, Manchester and Liverpool — ideal for commuters.
Internally the house retains mid‑20th century features including a living room with a brick fireplace and terrazzo hearth; rooms are average-sized and naturally bright. The garden is landscaped and private, providing a decent outdoor space for children or entertaining.
The house will suit buyers looking to personalise rather than move straight in: décor is dated and some updating is needed. Services and appliances have not been tested, so purchasers should satisfy themselves on heating and plumbing prior to purchase. Council Tax Band B and no flooding risk add practical value for budget-conscious buyers.
3 bedroom detached house for sale in Moorlands Park, Northwich, CW8 — £285,000 • 3 bed • 1 bath • 2330 ft²
3 bedroom semi-detached house for sale in Moss Lane, Cuddington, Northwich, CW8 — £320,000 • 3 bed • 1 bath • 1906 ft²
3 bedroom detached house for sale in Moorlands Park, Cuddington, Northwich, CW8 — £285,000 • 3 bed • 1 bath • 791 ft²
4 bedroom detached house for sale in Moorlands Avenue, Cuddington, Northwich, CW8 — £365,000 • 4 bed • 2 bath • 1283 ft²
2 bedroom semi-detached house for sale in St. James Court, Cuddington, Northwich, CW8 — £174,800 • 2 bed • 2 bath • 568 ft²
3 bedroom semi-detached house for sale in Acorn Close, Cuddington, Northwich, CW8 — £270,000 • 3 bed • 1 bath • 1002 ft²


































































































