**Standout Features:**
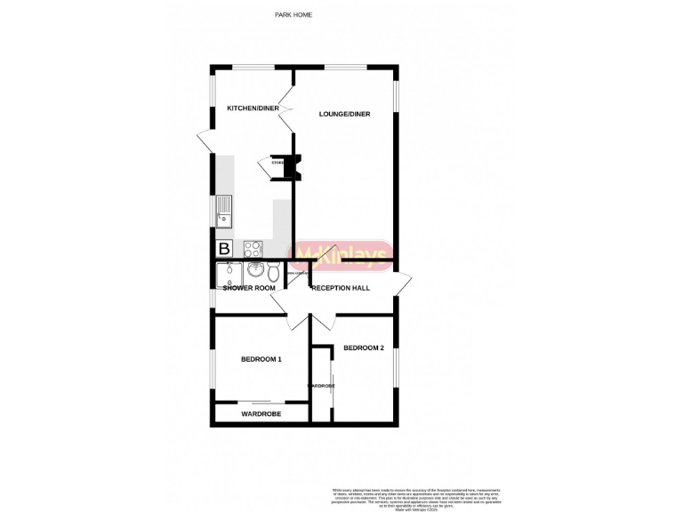
- 1998 Stately Albion Tredegar Park Home, 36’ x 20’
- Two double bedrooms with fitted wardrobes
- Dual-aspect kitchen/diner and lounge/diner
- West-facing garden, garage, and tarmac driveway
- Vacant possession, chain-free sale
- Ground rent: £169.99 per month (with water included)
- Council Tax Band: B
- Over 50's community, pets allowed
Discover this charming 1998 Stately Albion Tredegar Park Home, offering a comfortable and welcoming space perfect for over 50s. The 720 sq. ft. property features two double bedrooms, each with fitted wardrobes, and a bright, dual-aspect living and dining area that invites natural light. The well-appointed kitchen provides a convenient dining setup, making it ideal for entertaining.
Step outside to enjoy a lovely west-facing garden, perfect for basking in the afternoon sun. The property includes a garage with power and lighting, as well as a tarmac driveway providing ample parking. Located just over a mile from Ilminster's town center, you’re never far from essential amenities, including well-rated schools and local shops.
While it is in superb condition, please be aware of the ongoing ground rent and ensure all aspects of property maintenance meet your needs. This exclusive home is a fantastic opportunity for anyone seeking comfort and an active community. Don’t miss your chance to view this ready-to-move-in property—schedule your visit today!











































