Chain-free new home with balcony, gym and concierge close to excellent transport links.
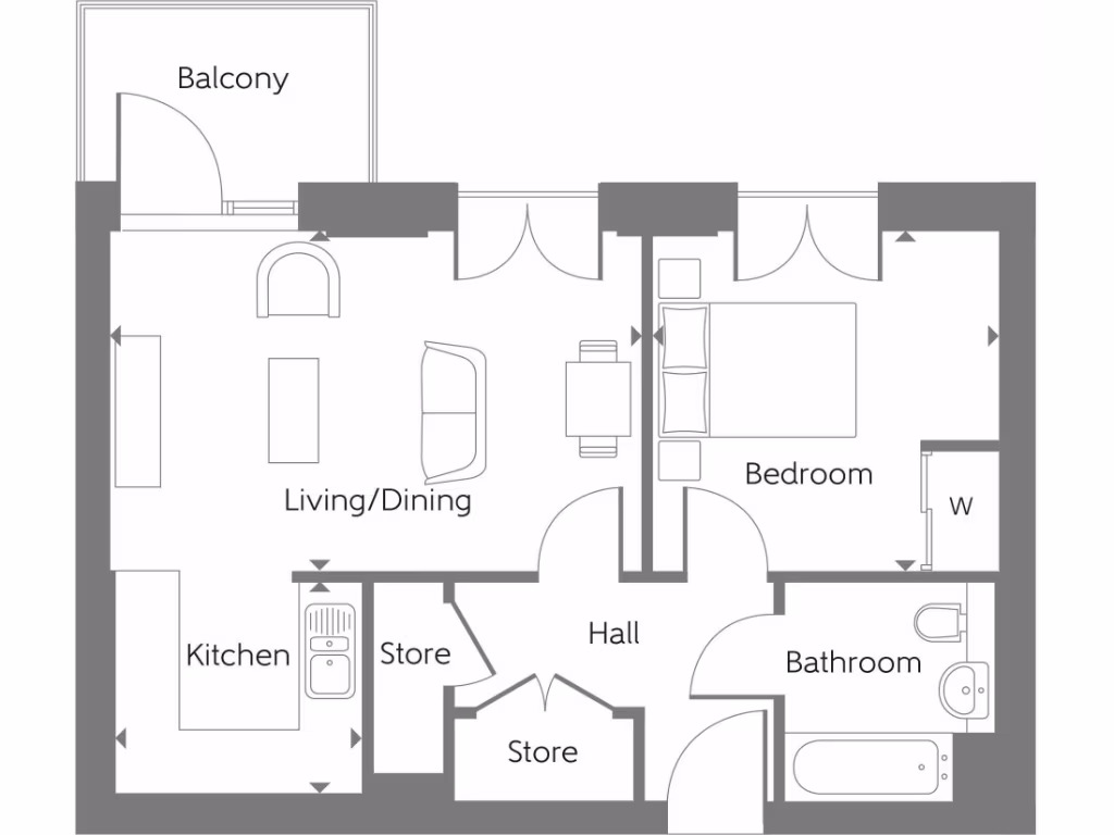
- 547 sq ft one-bedroom apartment with private balcony
- Open-plan living, fitted kitchen, Juliet and full balconies
- Brand-new, chain-free; completions from Winter 2025
- 10-year NHBC Buildmark warranty included
- On-site gym, concierge and dedicated work hub
- Annual service charge: £2,704.51
- Located near Pudding Mill DLR; one stop to Stratford International
- Local area: higher crime rate and signs of deprivation
This brand-new one-bedroom apartment in E15 offers contemporary, energy-efficient living with practical commuter links. At 547 sqft the open-plan layout, fitted kitchen, and full-sized private balcony suit buyers seeking low-maintenance city living or a rental buy-to-let.
Residents benefit from on-site amenities including a gym, concierge and a dedicated work-from-home hub, plus landscaped communal areas. Completion from Winter 2025, chain-free sale and a 10-year NHBC Buildmark policy provide added peace of mind.
Notable costs and local context are set out plainly: an annual service charge of £2,704.51 applies, and the development sits in a neighbourhood with higher crime and area deprivation indicators. Council tax band is TBC. The property is leasehold (999 years), energy efficient and a short walk to Pudding Mill DLR with one-stop access to Stratford International.
For investors this flat offers straightforward rental appeal near transport and local amenities; for owner-occupiers it’s an accessible new build with deposit support available on selected plots. Anyone considering purchase should factor service charges and local area statistics into affordability and rental-yield calculations.
1 bedroom apartment for sale in Cooks Road,
Stratford,
London,
E15 2PN, E15 — £405,000 • 1 bed • 1 bath • 547 ft²
1 bedroom apartment for sale in Cooks Road,
Stratford,
London,
E15 2PN, E15 — £435,000 • 1 bed • 1 bath • 547 ft²
1 bedroom apartment for sale in Cooks Road,
Stratford,
London,
E15 2PN, E15 — £443,000 • 1 bed • 1 bath • 564 ft²
1 bedroom apartment for sale in Cooks Road,
Stratford,
London,
E15 2PN, E15 — £434,000 • 1 bed • 1 bath • 564 ft²
1 bedroom apartment for sale in Cooks Road,
Stratford,
London,
E15 2PN, E15 — £437,000 • 1 bed • 1 bath • 564 ft²
2 bedroom apartment for sale in Cooks Road,
Stratford,
London,
E15 2PN, E15 — £542,500 • 2 bed • 1 bath • 806 ft²






























































































































