Spacious, private garden and studio close to station and village amenities.
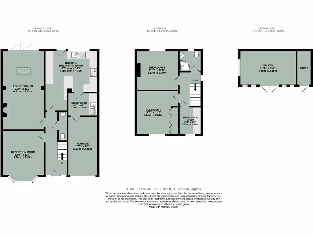
Three bedrooms with flexible reception or study space
Generous lounge/diner with log burner and bi-fold doors
Stylish kitchen/breakfast room plus separate utility
Private mature rear garden with raised decking and studio
Garage with electric roller door and parking for three cars
Solid brick 1930s build; assumed no cavity insulation
Mixed glazing (mainly older double glazing; kitchen triple-glazed)
Single shower room upstairs; council tax above average
This well-presented three-bedroom detached home blends 1930s charm with contemporary updates, arranged over two floors and extended to create flexible family living. The layout centres on a generous lounge/diner with a log burner and bi-fold doors to the garden, a separate reception room, and a stylish kitchen/breakfast room with a utility and direct garage access.
Outside, a mature, private rear garden, raised decking and a versatile studio/outbuilding create practical outdoor living and home-working options. Driveway parking for up to three cars and an electrically operated garage add everyday convenience, while the site’s proximity to Cholsey shops and the train station supports easy commuting.
Practical points to note: the house is solid-brick construction dating from the 1930s with assumed no cavity insulation, and the property has a mix of glazing types (mainly older double glazing with triple glazing in the kitchen area). There is a single shower room upstairs and council tax is above average, which are relevant for running costs and family use.
Overall this freehold house will suit families or buyers seeking ready-to-live accommodation with room to personalise, enjoying a private garden, outbuilding and strong local transport links.
2 bedroom terraced house for sale in Reading Road, Cholsey, OX10 — £425,000 • 2 bed • 1 bath • 979 ft²
4 bedroom detached house for sale in Station Road, Cholsey, OX10 — £700,000 • 4 bed • 2 bath • 1719 ft²
3 bedroom detached house for sale in East End, Cholsey, OX10 — £450,000 • 3 bed • 2 bath • 999 ft²
3 bedroom semi-detached house for sale in Lapwing Lane, Cholsey, OX10 — £425,000 • 3 bed • 1 bath • 1325 ft²
4 bedroom semi-detached house for sale in Kennedy Crescent, Cholsey, OX10 — £550,000 • 4 bed • 3 bath • 1453 ft²
3 bedroom semi-detached house for sale in Rothwells Close, Cholsey, Wallingford, OX10 — £425,000 • 3 bed • 1 bath • 776 ft²


































































