N12 0BY - 3 bedroom terraced house for sale in Rosemont Avenue, Londo…

View on Property Piper

3 bedroom terraced house for sale in Rosemont Avenue, London, N12

Summary - 17, ROSEMONT AVENUE N12 0BY

3 bed 2 bath Terraced

Chain-free 3-bed family house with garden and good schools nearby.
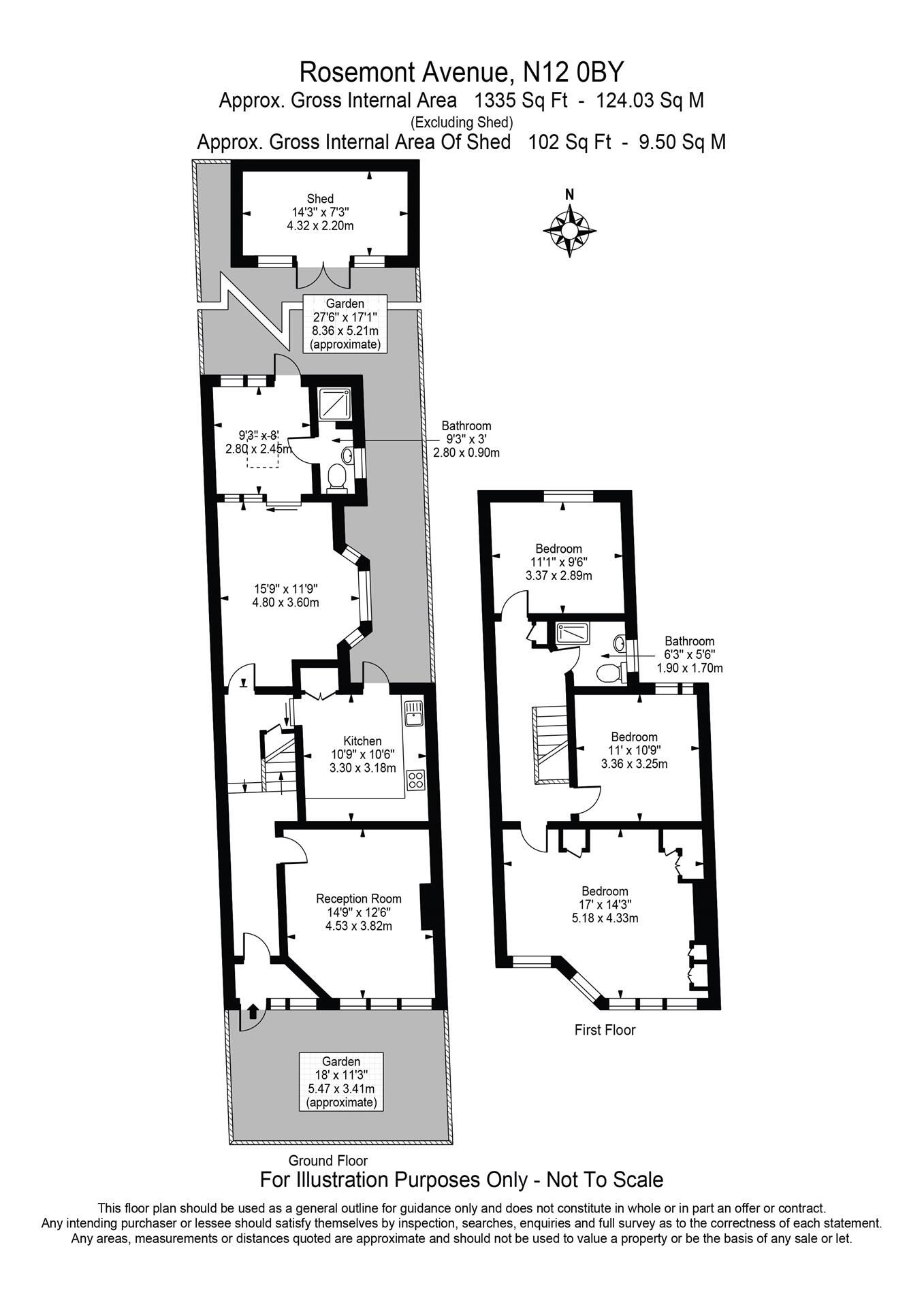
Chain-free three-bedroom terraced house, 1,335 sq ft
Set on Rosemont Avenue in North Finchley, this chain-free three-bedroom terraced house offers generous living space across 1,335 sq ft. Two reception rooms and a separate kitchen provide flexible family living and entertaining space, while front and rear gardens add private outdoor areas for children and pets.

The property dates from the 1930s/40s and retains period character externally, with bay windows and a brick façade. Internally the layout is practical for family life — three bedrooms and two bathrooms reduce morning pressure. Local schools rated Good to Outstanding are within easy reach, and nearby transport and shops serve everyday needs.

Buyers should note practical considerations: the house has solid brick walls (likely no cavity insulation), an unknown-age double glazing installation, and an above-average council tax band. Crime levels in the area are comparatively high; prospective purchasers are advised to commission a survey and factor potential insulation, heating or security upgrades into budgets. Chain-free status and the size make this a strong proposition for a growing family or buyers seeking refurbishment potential.

Property Details

Image Descriptions

Rooms

Textual Property Features

Target Audience

AI Tags

Detected Visual Features

EPC Details

Nearby Schools

Nearest Bars And Restaurants

,,,,}

Nearest General Shops

,,}

Nearest Grocery shops

,,}

Nearest Supermarkets

,,}

Nearest Religious buildings

,,}

Nearest Medical buildings

,,,}

Nearest Airports

,}

Nearest Leisure Facilities

,,,,}

Nearest Tourist attractions

,,}

Nearest Train stations

,,,,}

Nearest Bus stations and stops

,,,,}

Nearest Hotels

,,}

Tags

Local Market Stats

AirBnB Data

Similar Properties

Meta

High Res Images

Compatible Images

Low res Images

Thumbnails

Raw Images

High Res Floorplan Images

Compatible Floorplan Images

Low res Floorplan Images

FloorplanImages Thumbnail

Raw Floorplan Images