Quiet cul-de-sac with large landscaped garden and nearby schools.
Extended three-bedroom semi-detached house in a quiet cul-de-sac
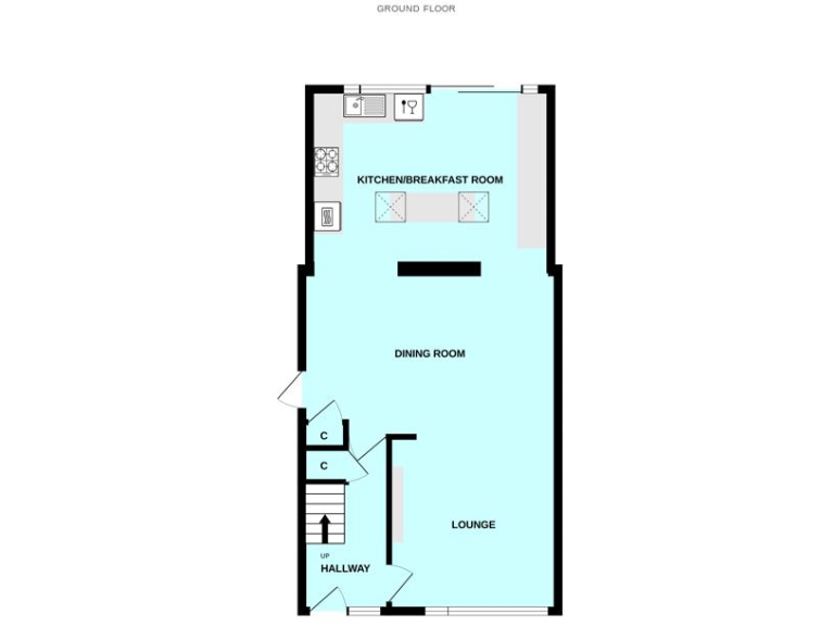
Tucked at the end of a quiet cul-de-sac, this extended three-bedroom semi delivers practical family living and generous outdoor space. The layout separates lounge and dining areas and opens to a sizable kitchen/breakfast room with an island and integrated appliances — ideal for everyday life and casual entertaining. The enclosed rear garden is landscaped with patio, decking and artificial turf, creating low-maintenance outdoor space for children and gatherings.
Comfort and efficiency are in place: uPVC double glazing, mains gas central heating and a modern fitted kitchen. Bedrooms are a comfortable size for a family and upstairs windows offer distant views towards Plympton. A garage in a nearby block provides useful off-street parking and storage, though it is not directly attached to the property.
Buyers should note this home has a single family bathroom serving three bedrooms and, while presented well, offers scope for cosmetic updating to personalise finishes. The property is Freehold, sits within Council Tax Band C and occupies a decent plot for the area. Local schools, amenities and good transport links make this a practical choice for growing families or buyers seeking straightforward, move-in ready accommodation with potential to add value over time.
3 bedroom semi-detached house for sale in Weir Close, Mainstone, PL6 8SD, PL6 — £262,000 • 3 bed • 1 bath • 904 ft²
3 bedroom semi-detached house for sale in Colwill Road, Plymouth, PL6 — £240,000 • 3 bed • 2 bath • 811 ft²
3 bedroom semi-detached house for sale in Greenacres, Plymouth, PL9 — £264,000 • 3 bed • 1 bath • 646 ft²
3 bedroom semi-detached house for sale in Torbridge Close, Saltash, PL12 4LN, PL12 — £250,000 • 3 bed • 1 bath • 920 ft²
3 bedroom semi-detached house for sale in Honicknowle Lane, Plymouth, City Of Plymouth, PL5 — £200,000 • 3 bed • 1 bath • 982 ft²
3 bedroom end of terrace house for sale in Plymouth, Devon, PL3 — £220,000 • 3 bed • 1 bath • 897 ft²






























































































































