Spacious extended house near excellent transport and schools.
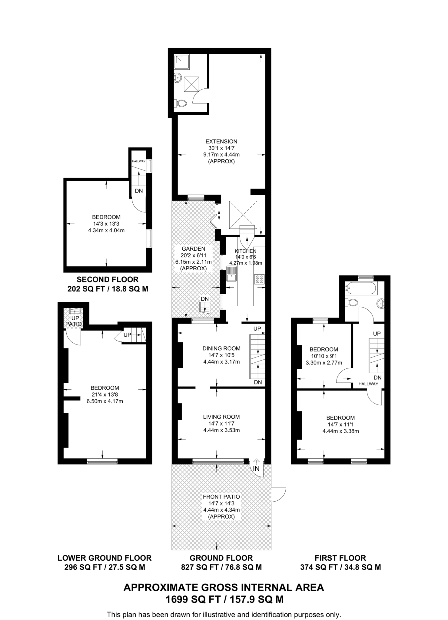
4 bedrooms and 2 bathrooms, generous extended living space
Large rear extension and bright reception room with high ceilings
Private front patio plus small rear garden for outdoor use
Freehold property sold at auction; prior auction purchaser available
Close to Mile End, Bow Road, Bow Church transport hubs
Nearby Good and Outstanding primary and secondary schools
Solid-brick 1900–1929 construction; assumed no wall insulation
Area shows above-average crime and local deprivation indicators
This four-bedroom end-terrace on Coborn Road offers spacious family living across an extended layout. The large rear extension and high ceilings create generous reception and dining spaces ideal for modern family life and entertaining. A private front patio and rear garden provide outdoor space despite a small plot.
Located inside the Golden Triangle between Canary Wharf, Stratford Olympic Park and the City, the house has excellent transport links (Mile End, Bow Road, Bow Church) and fast mobile and broadband. Local schools include several Good and Outstanding primary and secondary options, making the location practical for families.
The property is offered for sale at auction (prior auction purchase available) and is freehold. Constructed 1900–1929 with solid brick walls, the house appears to lack wall insulation and may benefit from energy-efficiency upgrades. There is double glazing but no confirmed install date. Buyers should allow budget for potential refurbishment to modernise heating, insulation and decor.
This home suits buyers seeking a sizeable family property with flexible living space in an inner-city setting. It presents clear potential to add value through sympathetic updating while providing immediate usable accommodation and strong local amenities.
4 bedroom town house for sale in Coborn Road, London, E3 — £750,000 • 4 bed • 2 bath • 1699 ft²
3 bedroom house for sale in Bruce Road, Bow, London, E3 — £600,000 • 3 bed • 1 bath • 1506 ft²
4 bedroom semi-detached house for sale in Harley Grove, E3, Bow, London, E3 — £1,200,000 • 4 bed • 2 bath • 2100 ft²
3 bedroom terraced house for sale in 74 Lyal Road, Bow London E3 5QQ, E3 — £635,000 • 3 bed • 1 bath
4 bedroom flat for sale in Stroudley Walk, LONDON, London, E3 — £330,000 • 4 bed • 1 bath • 1037 ft²
2 bedroom flat for sale in Anderson Square, Tower Hamlets, LONDON, E3 — £400,000 • 2 bed • 1 bath • 797 ft²






























































































