Large four-bedroom stone home near Farsley village with parking and development potential.
Four double bedrooms across four floors, large room proportions
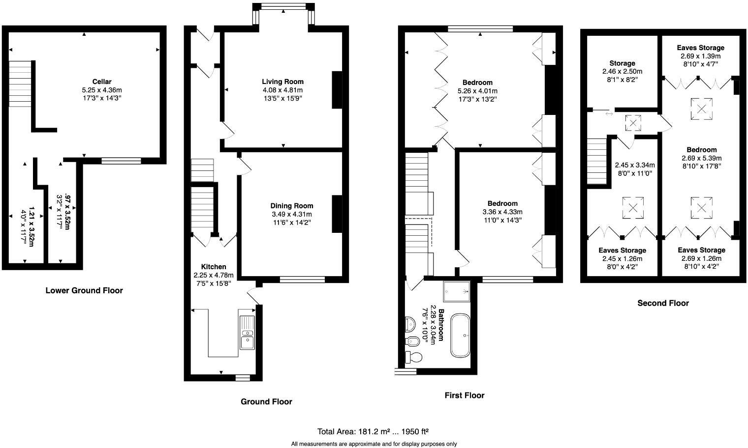
Spacious Victorian stone mid-terrace offering generous family living across four floors, set within walking distance of Farsley village and local schools. The property combines period features — high ceilings, bay window and cornicing — with a modern kitchen and a well-appointed bathroom, ready to move into for an occupying family. Practical extras include off-street parking to the rear, a large powered cellar and extensive eaves storage, giving useful room for belongings or conversion potential (subject to planning).
The house presents clear scope for personalisation and further development: the large top-floor storage room and roomy cellar could be adapted to add living space or an additional bathroom, subject to approvals. Room sizes are notably generous for a terrace, making the layout flexible for families who need separate reception space, a home office and multiple bedrooms.
Buyers should note material facts plainly: the property sits in an area with very high recorded crime levels, the external stone walls are assumed uninsulated, and the EPC rating is D. The plot is relatively small and there is a single main bathroom for four bedrooms. These points may affect running costs, comfort and future renovation scope and should be factored into any offer.
Overall, this freehold home suits families looking for space near good schools and amenities, or buyers seeking a period property with sensible modern upgrades and clear potential to add value through sympathetic refurbishment.
4 bedroom terraced house for sale in Low Bank Street, Farsley, Pudsey, West Yorkshire, LS28 — £475,000 • 4 bed • 2 bath • 1488 ft²
4 bedroom terraced house for sale in Woodlands Grove, Stanningley, Pudsey, West Yorkshire, LS28 — £190,000 • 4 bed • 1 bath • 989 ft²
2 bedroom terraced house for sale in Eddison Street, Farsley, Pudsey, West Yorkshire, LS28 — £190,000 • 2 bed • 1 bath • 936 ft²
2 bedroom terraced house for sale in Prospect Terrace, Farsley, Pudsey, West Yorkshire, LS28 — £275,000 • 2 bed • 1 bath • 1184 ft²
4 bedroom terraced house for sale in Sholebroke View, LEEDS, LS7 — £270,000 • 4 bed • 1 bath • 1020 ft²
3 bedroom terraced house for sale in Portland Street, Pudsey, West Yorkshire, LS28 — £275,000 • 3 bed • 1 bath • 1066 ft²






































































































