**Standout Features:**
- Beautifully presented period cottage over three floors
- Tucked-away location with established gardens and elevated views toward High Town
- Spacious kitchen/breakfast room with French doors leading to the garden
- Character features including an Inglenook fireplace and exposed brickwork
- Two bedrooms with potential for personalization
- Double glazing and gas-fired central heating
- Affordable council tax rates and low crime area
**Key Details:**
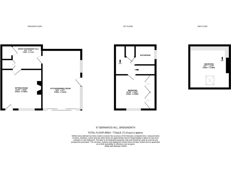
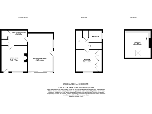
Welcome to this charming two-bedroom period cottage on Bernards Hill, Bridgnorth. Set in a tranquil location, this home boasts character with its traditional design and impressive established gardens, perfect for enjoying the outdoors. The ground floor features a cozy sitting room with a stunning Inglenook fireplace and an ample kitchen/breakfast room with desirable French doors leading to the lush garden, creating an inviting space for family gatherings or entertaining guests. The cottage’s first and second floors reveal bedrooms adorned with unique architectural details, ready for your personal touch.
While the property offers exceptional charm and comfort, it's worth noting that there is no dedicated parking; however, on-street parking and permit options are available nearby. With excellent mobile signal and fast broadband, this cottage suits both quiet family life and modern living. A fantastic opportunity for first-time buyers or investors seeking a rental property with growth potential—don’t miss out on this appealing blend of character and nourishing space. Embrace the tranquility and make this cottage your own!
3 bedroom detached house for sale in Bernards Hill, Bridgnorth, Shropshire, WV15 — £300,000 • 3 bed • 1 bath • 913 ft²
2 bedroom end of terrace house for sale in 38 Bernards Hill, Bridgnorth, WV15 — £200,000 • 2 bed • 1 bath • 522 ft²
2 bedroom cottage for sale in Bernards Hill, Bridgnorth, WV15 — £220,000 • 2 bed • 1 bath • 444 ft²
2 bedroom terraced house for sale in Bernards Hill, Bridgnorth, Shropshire, WV15 — £250,000 • 2 bed • 1 bath • 561 ft²
2 bedroom end of terrace house for sale in Friars Street, Bridgnorth, Shropshire, WV16 — £315,000 • 2 bed • 1 bath • 969 ft²
2 bedroom cottage for sale in Bernards Hill, Bridgnorth, WV15 — £210,000 • 2 bed • 1 bath • 610 ft²


























































































