**Standout Features:**
- Enchanting detached house, blending modern convenience with timeless charm
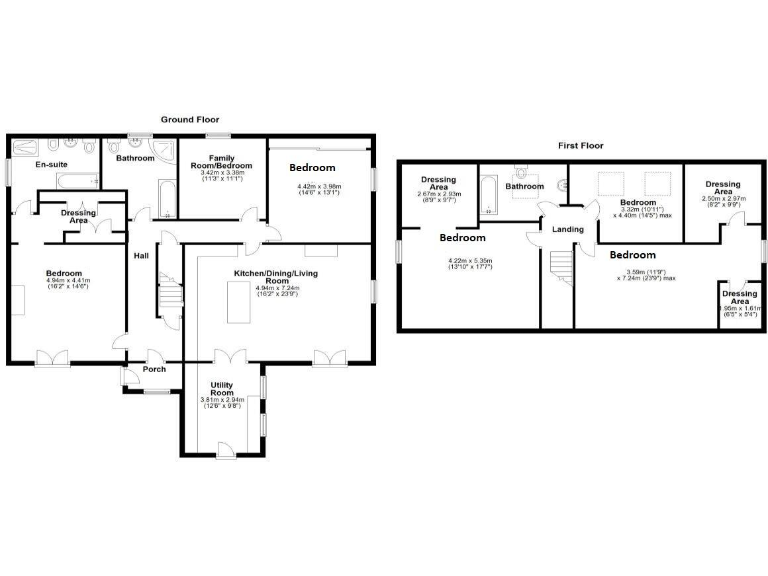
- Six spacious bedrooms and three well-appointed bathrooms
- Fully equipped traditional kitchen with marble countertops
- Recent full renovation in 2011, with a brand-new durable roof
- Expertly designed extension while retaining 1900s character
- Immaculate presentation, ideal for families or those seeking comfort
- Large outdoor space featuring a rustic stone exterior and garden
Welcome to your dream home! This beautifully renovated detached house combines modern comforts with historical allure, offering six expansive bedrooms and three elegant bathrooms—perfect for families seeking ample space. The fully equipped traditional kitchen, adorned with marble countertops, invites culinary creativity. With a generous plot size and a new roof, this property is both welcoming and practical, ensuring longevity and low maintenance.
Despite its 1900s character, this property showcases modern upgrades courtesy of a full renovation in 2011, including an expertly designed extension to maximize living areas without sacrificing charm. Situated in a thriving community with above-average school ratings nearby and essential amenities just a stone's throw away, you can relish suburbia while enjoying fast broadband and excellent mobile signals.
Though the overall condition is fantastic, please note that the property’s walls lack insulation, which may require consideration for energy management. With its incredible blend of historic charm and contemporary living, this house is truly a gem awaiting its new owners. Act quickly—this unique offering won’t last long!
3 bedroom terraced house for sale in Whorlton, Newcastle upon Tyne, Tyne and Wear, NE5 — £289,950 • 3 bed • 1 bath • 1222 ft²
3 bedroom house for sale in North Brunton, Newcastle upon Tyne , , NE3 — £595,000 • 3 bed • 2 bath • 1669 ft²
4 bedroom detached house for sale in Church Street, Winlaton, NE21 — £400,000 • 4 bed • 3 bath • 3240 ft²
5 bedroom detached house for sale in Village Farm, Walbottle, Newcastle Upon Tyne, NE15 — £625,000 • 5 bed • 2 bath • 1853 ft²
5 bedroom detached house for sale in Albion Street, Windy Nook, Gateshead, NE10 — £415,000 • 5 bed • 3 bath • 1981 ft²
3 bedroom detached house for sale in Morwick Place, Newcastle upon Tyne, Tyne and Wear, NE5 — £180,000 • 3 bed • 1 bath • 840 ft²


















































































































