TQ6 0HS - 4 bedroom terraced house for sale in Riverside Road, Dittis…

View on Property Piper

4 bedroom terraced house for sale in Riverside Road, Dittisham, TQ6

Summary - 18 Dittisham Court, Riverside Road To Dittisham Court TQ6 0HS

4 bed 2 bath Terraced

**Standout Features:**
- **4 Bedrooms:** Includes one ensuite and versatile space for a study or guest room.
- **River Views:** Enjoy picturesque landscapes from multiple rooms and private terrace.
- **Private Outdoor Space:** Spacious garden mostly laid to lawn, perfect for relaxation.
- **Communal Grounds:** Beautifully maintained shared areas with orchards and views.
- **Designated Parking:** Includes two off-street spaces and potential boat parking nearby.
- **No Onward Chain:** Ready for immediate occupancy with a freehold title.

**Concise Summary:**
Welcome to this charming four-bedroom terraced barn conversion on Riverside Road in Dittisham, combining rustic charm with modern convenience. The property showcases stunning river views from the open-plan living area and main bedroom, flowing seamlessly onto a private terrace perfect for alfresco dining. Nestled in a picturesque village, it offers easy access to local amenities, including shops, pubs, and a delightful waterside park.

The accommodation is thoughtfully arranged over three floors, ideal for families or potential holiday rental income. Enjoy the serenity of the shared four acres of beautifully maintained grounds, complete with parking for two vehicles and an option for boat parking at the local sailing club. While the home is in good condition, it benefits from the freedom to personalize or renovate to your liking. This exclusive property is not just a home; it’s a gateway to a tranquil life in one of South Hams' most desirable villages. Act quickly, as opportunities like this won't last long!

Property Details

Brochure Descriptions

Image Descriptions

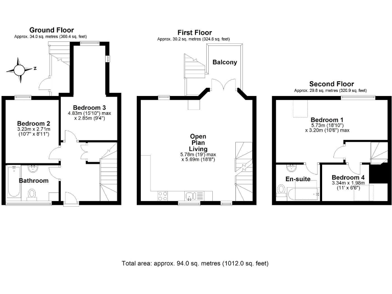
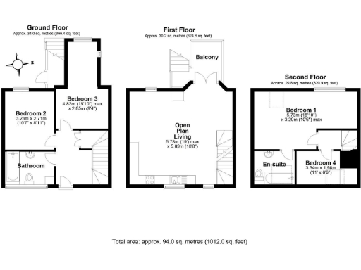
Floorplan Description

Rooms

Textual Property Features

Detected Visual Features

EPC Details

Nearby Schools

Nearest Bars And Restaurants

,,,,}

Nearest General Shops

,,}

Nearest Grocery shops

,,}

Nearest Supermarkets

,,}

Nearest Religious buildings

,,}

Nearest Medical buildings

,,,}

Nearest Leisure Facilities

,,,,}

Nearest Tourist attractions

,,}

Nearest Train stations

,,,,}

Nearest Bus stations and stops

,,,,}

Nearest Hotels

,,}

Tags

Local Market Stats

AirBnB Data

Similar Properties

Meta

High Res Images

Compatible Images

Low res Images

Thumbnails

Raw Images

High Res Floorplan Images

Compatible Floorplan Images

Low res Floorplan Images

FloorplanImages Thumbnail

Raw Floorplan Images