PL1 3FJ - 1 bed central one bedroom apartment in George Place, PL1 3FJ

View on Property Piper

1 bedroom apartment for sale in George Place, Plymouth, Devon, PL1

Summary - 27 FLAT 1 GEORGE PLACE PLYMOUTH PL1 3FJ

1 bed 1 bath Apartment

Compact modern apartment with balcony, parking and strong rental potential close to Plymouth centre..
Upper-floor one-bedroom with balcony and lift access
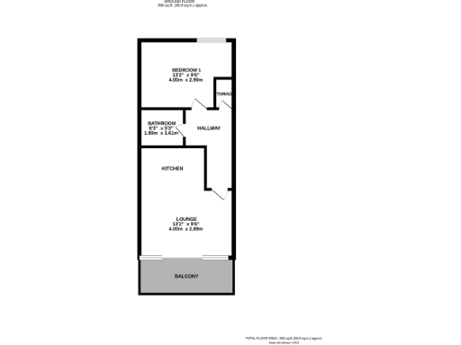
Bright upper-floor one-bedroom apartment with a private balcony and lift access, set in a modern mid-terrace block close to Plymouth city centre and Royal William Yard. The open-plan living area and large windows create a light, airy feel in a compact 396 sq ft layout, suitable for single occupancy or a couple.

Practical positives include secure allocated off-street parking, a long lease of 233 years, double glazing and fast broadband/mobile connectivity. The building dates from 2007–2011 and benefits from a community heating scheme and low local crime, keeping running costs straightforward and the environment calm.

The property sits in a cosmopolitan, student-oriented neighbourhood within a wider area classified as hampered aspiration and deprived. This brings good rental demand and proximity to amenities, but also means buyers should expect an urban, mixed-use neighbourhood character and a resale market influenced by local affordability dynamics.

As a compact, modern apartment it suits first-time buyers seeking a central home or investors targeting steady lets. The small overall size limits storage and scope for large furniture; purchasers wanting more space or family accommodation should look elsewhere.

Property Details

Brochure Descriptions

Image Descriptions

Floorplan Description

Rooms

Textual Property Features

Target Audience

AI Tags

Detected Visual Features

EPC Details

Nearby Schools

Nearest Bars And Restaurants

,,,,}

Nearest General Shops

,,}

Nearest Grocery shops

,,}

Nearest Supermarkets

,,}

Nearest Religious buildings

,,}

Nearest Medical buildings

,,,}

Nearest Leisure Facilities

,,,,}

Nearest Tourist attractions

,,}

Nearest Train stations

,,,,}

Nearest Bus stations and stops

,,,,}

Nearest Hotels

,,}

Tags

Local Market Stats

AirBnB Data

Similar Properties

Meta

High Res Images

Compatible Images

Low res Images

Thumbnails

Raw Images

High Res Floorplan Images

Compatible Floorplan Images

Low res Floorplan Images

FloorplanImages Thumbnail

Raw Floorplan Images