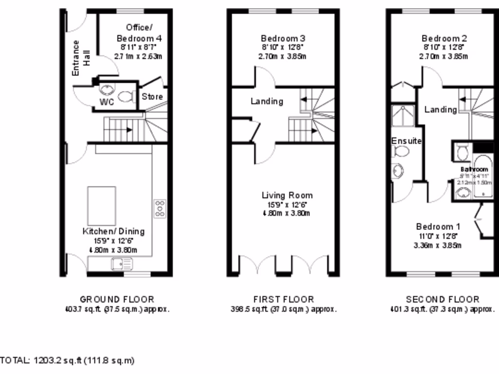
**Standout Features:**
- Elegant three-storey four-bedroom townhouse
- Modern kitchen fitted last year with stylish island and integrated appliances
- Spacious lounge with dual Juliette balconies, ensuring plenty of natural light
- Main bedroom with fitted wardrobes and ensuite
- Landscaped rear garden with multiple seating areas
- Garage and off-road shared parking
- Close to Shireoaks train station and local amenities
Discover stylish suburban living in this modern and newly renovated three-storey townhouse in Shireoaks. Ideal for families or investors, this four-bedroom gem boasts a high-quality kitchen fitted just last year, featuring chic cabinetry, a breakfast bar, and seamless herringbone flooring. The versatile ground floor room offers options for cozy family living or even additional guest accommodation, along with a convenient downstairs W.C.
Upstairs, enjoy spacious private quarters, including a magnificent main bedroom complete with fitted wardrobes and a contemporary ensuite. A bright lounge, with dual Juliette balconies, serves as the perfect space for relaxation and socializing. The landscaped garden invites outdoor enjoyment with various seating areas, ideal for summer gatherings or peaceful afternoons.
Convenience is at your doorstep with Shireoaks train station a short walk away, providing direct access to popular cities like Sheffield and Leeds. The locality offers an array of amenities, including shops, schools, and parks, making it great for families and professionals alike.
While the property is in excellent condition, it’s worth noting the shared driveway and above-average crime rate in the area. This exceptional property offers a blend of modern comfort and suburban charm—don't miss your chance to claim it as your own, since opportunities like this don’t last long!
5 bedroom detached house for sale in Middle Meadow, Worksop, Nottinghamshire, S81 — £400,000 • 5 bed • 4 bath • 1329 ft²
4 bedroom house for sale in Monks Way, Shireoaks, Worksop, S81 — £200,000 • 4 bed • 2 bath • 1185 ft²
5 bedroom detached house for sale in Middle Meadow, Shireoaks, Worksop, S81 — £425,000 • 5 bed • 4 bath • 1554 ft²
4 bedroom detached house for sale in Moses View, Shireoaks, Worksop, S81 — £450,000 • 4 bed • 2 bath • 1357 ft²
4 bedroom detached house for sale in Clayson Green, Shireoaks, Worksop, S81 — £390,000 • 4 bed • 3 bath • 1108 ft²
4 bedroom detached house for sale in Ivel Crescent, Shireoaks, WORKSOP, S81 — £325,000 • 4 bed • 2 bath • 822 ft²










































































































