Move-in ready two-bedroom with garden and off-street parking, ideal for first-time buyers.
Two double bedrooms on the first floor
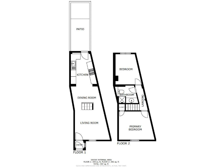
A well-presented two-bedroom end-of-terrace home offering practical, move-in ready living across two floors. The ground floor features an open-plan contemporary kitchen-diner and a spacious lounge that benefits from good natural light. Upstairs are two double bedrooms and a family bathroom — a straightforward layout suited to first-time buyers or those downsizing.
Outside space is compact but private, with a modest garden and off-street parking — useful extras in this popular Ramsgate neighbourhood. The property is chain-free and has mains gas central heating with a boiler and radiators, making it ready for immediate occupation.
Built before 1900 with solid brick walls and double glazing (installation date unknown), the house retains period character but could benefit from insulation improvements to increase comfort and efficiency. Broadband speeds are fast and there is no flood risk, though local crime levels are above average, which buyers should factor into their area checks.
This home suits buyers seeking an affordable entry into Ramsgate or a low-maintenance base close to local schools, shops and the town’s amenities. There is modest potential to add value through targeted improvements such as wall insulation, cosmetic updates or garden landscaping, while keeping running costs low thanks to very cheap council tax.
2 bedroom terraced house for sale in Townley Street, Ramsgate, CT11 — £240,000 • 2 bed • 1 bath • 676 ft²
2 bedroom semi-detached house for sale in Adelaide Gardens, Ramsgate, CT11 — £299,000 • 2 bed • 1 bath • 580 ft²
2 bedroom terraced house for sale in Priory Courtyard, Ramsgate, CT11 — £250,000 • 2 bed • 1 bath • 797 ft²
2 bedroom terraced house for sale in Margate Road, Ramsgate, Kent, CT11 — £175,000 • 2 bed • 1 bath • 884 ft²
3 bedroom detached house for sale in West Dumpton Lane, Ramsgate, Kent, CT11 — £425,000 • 3 bed • 2 bath • 1209 ft²
2 bedroom terraced house for sale in Nursery Close, Ramsgate, Kent, CT11 — £250,000 • 2 bed • 1 bath • 728 ft²






































































