Chain-free three-bed home with basement potential near local amenities.
Three double bedrooms and two reception rooms
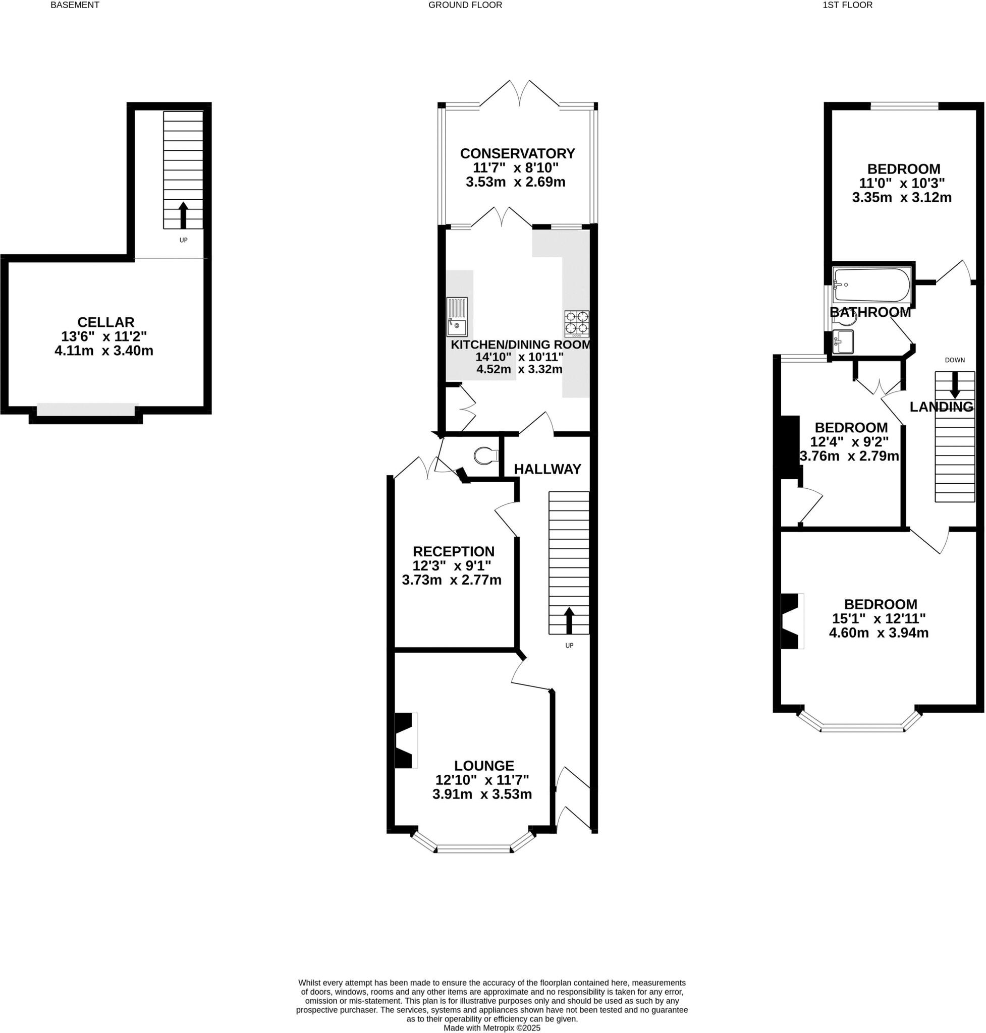
This well-proportioned Victorian terrace offers three double bedrooms, two reception rooms and a rear conservatory — a practical family home in a sought-after Southsea street. The double-bay façade and bay-front living room give classic character, while the open-plan kitchen/breakfast area leads directly into the conservatory and small rear garden for everyday family life.
Practical benefits include gas central heating, double glazing and fast broadband/mobile connectivity. The large basement cellar and external W.C. present clear scope to add value through internal reconfiguration or a sensible basement conversion, subject to necessary consents. The property is freehold and offered chain-free, which helps simplify purchase timing.
Notable considerations: the house was built circa 1900–1929 and the cavity walls are assumed uninsulated, so buyers should budget for potential insulation or energy-efficiency improvements. There is a single family bathroom and a small rear garden/forecourt typical of terrace living. Some updating or light refurbishment may be desired to fully realise the basement and internal conversion potential.
Located in a mixed student-and-professional neighbourhood, the home sits within easy reach of local shops, transport links and several well-rated primary schools, making it practical for families or investors targeting lettings. An internal viewing is recommended to assess room proportions and the scope of any improvement works.
3 bedroom terraced house for sale in Devonshire Avenue, Southsea, PO4 — £325,000 • 3 bed • 1 bath • 1446 ft²
3 bedroom terraced house for sale in Winter Road, Southsea, PO4 — £335,000 • 3 bed • 1 bath • 782 ft²
3 bedroom terraced house for sale in Devonshire Avenue, Southsea, PO4 — £425,000 • 3 bed • 1 bath • 1248 ft²
3 bedroom terraced house for sale in Haslemere Road, Southsea, PO4 — £295,000 • 3 bed • 1 bath • 700 ft²
3 bedroom terraced house for sale in Catisfield Road, Southsea, PO4 — £280,000 • 3 bed • 1 bath • 754 ft²
4 bedroom terraced house for sale in Winter Road, Southsea, PO4 — £410,000 • 4 bed • 2 bath • 1208 ft²


































































































































