**Standout Features:**
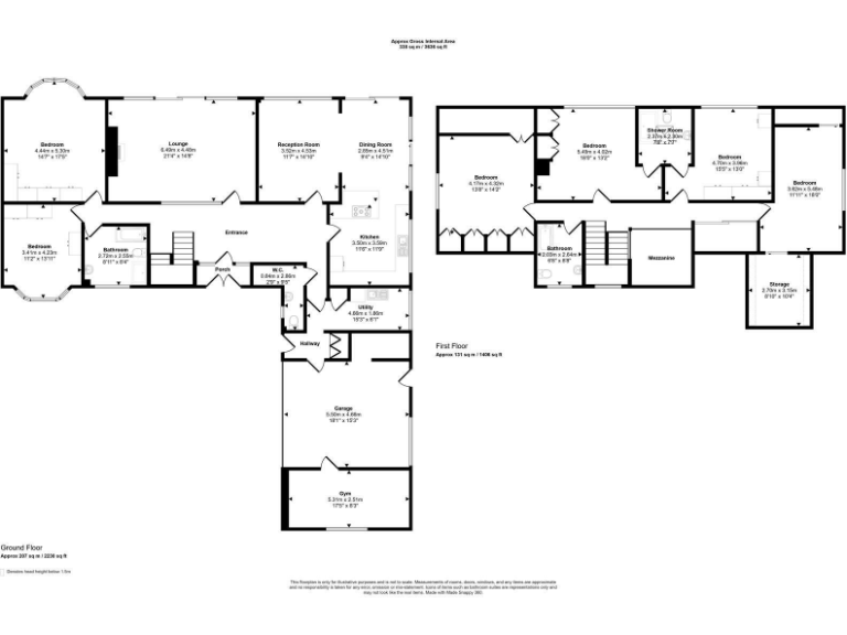
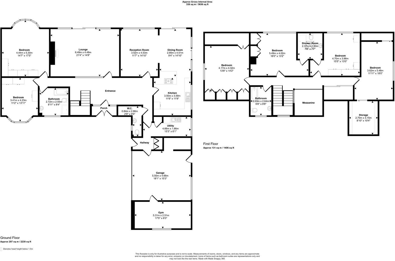
- Six spacious double bedrooms
- Open-plan kitchen/diner/family room with underfloor heating
- Two generous lounge areas and gallery landing
- Three luxurious bathrooms, also with underfloor heating
- Triple garage with a converted gym room
- Beautiful, mature gardens providing privacy and tranquility
- Long private driveway for ample parking
- Proximity to excellent local amenities and M4 motorway access
**Summary:**
Presenting an exceptional opportunity to own a six-bedroom detached home on Melbourne Way, Newport, this property is truly a family haven set on a generous plot. Offering over 2200 sq ft of versatile living space, the home features an impressive entrance hallway, two spacious lounges, and a fantastic open-plan kitchen/diner that embraces warmth with underfloor heating. Each of the three bathrooms is similarly equipped for comfort, catering to busy family life.
The expansive, lovely gardens are lush with mature plants, creating an idyllic outdoor sanctuary for families to enjoy. A gated long driveway leads to a triple garage, with one section converted into a gym, complementing the spacious lifestyle this property affords. This home is ideally located near essential amenities, schools, and convenient access to the M4, making it perfect for everyday living. Though the area is affluent, prospective buyers should note the high council tax band and the property's meticulous maintenance needs. Don’t miss your chance to view this remarkable home— its unique offerings may not last long in today’s fast-moving market!
6 bedroom detached house for sale in Nant Coch Rise, Newport, NP20 — £650,000 • 6 bed • 5 bath • 2491 ft²
6 bedroom detached house for sale in Maesglas Grove, Newport, NP20 — £375,000 • 6 bed • 2 bath • 1855 ft²
6 bedroom detached house for sale in Blacksmiths Way, Coedkernew, Newport, NP10 — £800,000 • 6 bed • 4 bath • 3997 ft²
4 bedroom detached house for sale in Melbourne Way, Newport, South Wales, NP20 — £485,000 • 4 bed • 2 bath • 1436 ft²
5 bedroom detached house for sale in Bronllys Mews, Newport, NP10 — £450,000 • 5 bed • 5 bath • 1989 ft²
4 bedroom detached house for sale in Groves Road,, NP20 — £750,000 • 4 bed • 2 bath • 2100 ft²


















































































































































