SE9 6RL - 3 bedroom flat for sale in Ross Way, London, SE9

View on Property Piper

3 bedroom flat for sale in Ross Way, London, SE9

Summary - 56 ROSS WAY LONDON SE9 6RL

3 bed 1 bath Flat

Period character, garden room and flexible living in the Progress conservation area.
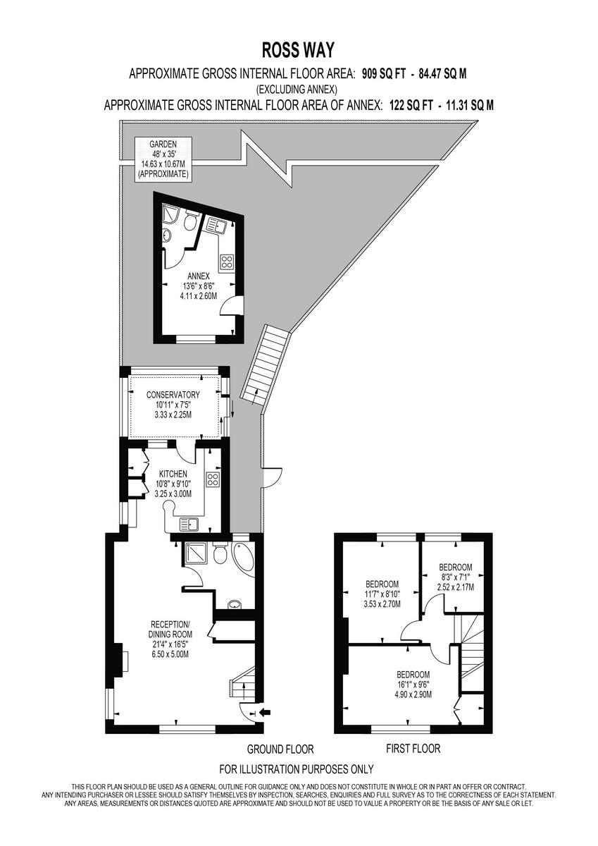
Freehold three-bedroom terraced home, approx. 909 sq ft
A well-presented three-bedroom home in the Progress Conservation Area, combining mock-Tudor character with practical modern updates. The main reception benefits from underfloor heating and opens into a separate kitchen and conservatory/utility space, creating flexible living for family life and working from home. The private rear garden and an attached garden room with its own facilities extend usable space — ideal as a home office, studio or guest space.

At about 909 sq ft across multiple storeys, the layout offers three generous bedrooms and a contemporary family bathroom. The property is freehold and retains period features from its c.1900–1929 construction alongside practical improvements such as double glazing (post-2002) and a mains-gas boiler with radiators. Fast broadband and reasonable mobile signal support home working and streaming.

Buyers should note some practical considerations: the house is built with solid brick walls and is assumed to have no cavity insulation (may affect energy efficiency and running costs). The home sits in an area classified as deprived, with average local crime levels — factor this into long-term plans. There is only one bathroom for three bedrooms and the property’s mid-terrace form limits side-aspect light in places.

For families, the location is a strong point: several well-rated local primary and secondary schools are within reach, and large green spaces such as Eltham and Woolwich Commons are nearby. Commuters have convenient rail and bus links into central London. Guide price £475,000–£500,000.

Property Details

Image Descriptions

Floorplan Description

Rooms

Textual Property Features

Target Audience

AI Tags

Detected Visual Features

EPC Details

Nearby Schools

Nearest Bars And Restaurants

,,,,}

Nearest General Shops

,,}

Nearest Grocery shops

,,}

Nearest Supermarkets

,,}

Nearest Religious buildings

,,}

Nearest Medical buildings

,,,}

Nearest Airports

,,}

Nearest Leisure Facilities

,,,,}

Nearest Tourist attractions

,,}

Nearest Train stations

,,,,}

Nearest Bus stations and stops

,,,,}

Nearest Hotels

,,}

Tags

Local Market Stats

AirBnB Data

Similar Properties

Meta

High Res Images

Compatible Images

Low res Images

Thumbnails

Raw Images

High Res Floorplan Images

Compatible Floorplan Images

Low res Floorplan Images

FloorplanImages Thumbnail

Raw Floorplan Images