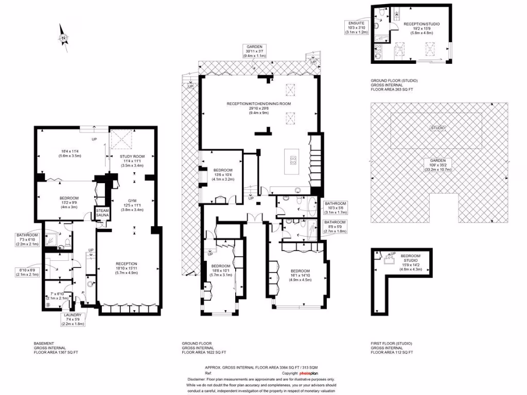
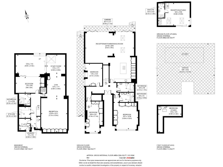
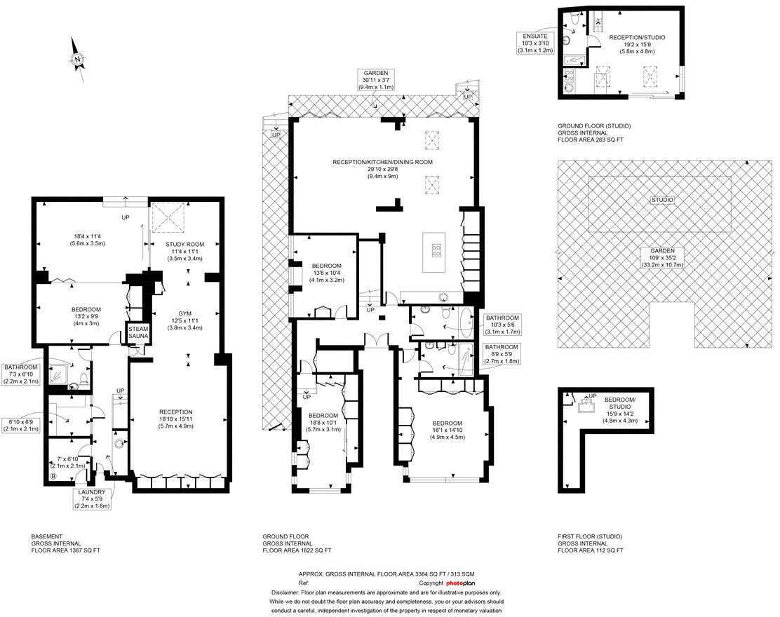
3,364 sq ft family flat with south garden and period character, ready for modern updates.
South-facing private garden and terrace
Large 3,364 sq ft five-bedroom layout
High ceilings, large windows, period character
Bespoke wine cellar and private sauna included
Separate secure rear room with independent access
Share of freehold tenure
EPC C; double glazing (install date unknown)
Solid brick walls; likely limited wall insulation
A rare, spacious family residence in South Hampstead, this garden flat spans garden and raised ground levels to deliver generous living across 3,364 sq ft. High ceilings, large windows and period brickwork give rooms a bright, airy feel while a modern extension and contemporary finishes create seamless indoor–outdoor living. The south-facing garden and terrace are standout features for families who value private outdoor space in the heart of the city.
The layout accommodates five bedrooms, three bathrooms, an expansive open-plan kitchen/dining/living area, a bespoke wine cellar and a private sauna. At the rear of the garden is a secure, separately accessed room that works well as a home study, guest accommodation or flexible family space. Excellent local amenities, highly rated schools nearby and fast transport links to central London suit busy family life.
Practical details are straightforward: the property is share of freehold, has mains gas heating via boiler and radiators, double glazing (install date unknown) and an EPC rating of C. The building dates from before 1900 with solid-brick walls; buyers should note limited wall insulation is assumed and secondary measures may be needed to improve thermal performance.
Points to consider honestly: council tax is described as quite expensive and the period construction means some retrofit work (insulation, potential window upgrades) could be needed to reduce running costs. Flood risk is nil and local crime levels are very low, making this a secure, long-term family home in a highly affluent neighbourhood.
3 bedroom flat for sale in Greencroft Gardens, London, NW6 — £1,750,000 • 3 bed • 2 bath • 1722 ft²
3 bedroom flat for sale in Greencroft Gardens, South Hampstead, London, NW6 — £1,250,000 • 3 bed • 3 bath • 1114 ft²
3 bedroom apartment for sale in Crediton Hill, West Hampstead, NW6 — £1,500,000 • 3 bed • 2 bath • 1587 ft²
3 bedroom apartment for sale in Canfield Gardens, South Hampstead, NW6 — £1,700,000 • 3 bed • 3 bath • 1868 ft²
3 bedroom flat for sale in Belsize Road, London, NW6 — £1,295,000 • 3 bed • 3 bath • 1335 ft²
3 bedroom flat for sale in Fairhazel Gardens, London, NW6 — £900,000 • 3 bed • 1 bath • 992 ft²


































































































































