Easy commuting village location with parking, ensuite and long lease — ideal first purchase or rental..
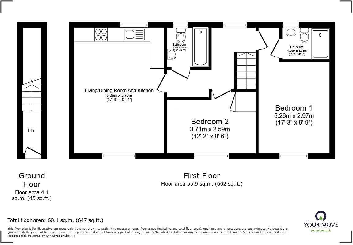
- Own entrance and first-floor layout
- 17ft living/dining room with natural light
- Main bedroom 17ft with ensuite shower
- Fitted kitchen with integrated appliances
- Allocated off-street parking space
- 140 years lease remaining, 647 sqft overall
- Service charge £600pa; ground rent £300pa
- Council Tax Band C; no flooding risk
This two-double-bedroom first-floor maisonette sits in Great Denham village within easy walking distance of schools, shops and the country park. The property benefits from its own entrance, a 17ft living/dining room, fitted kitchen with integrated appliances and an ensuite to the main bedroom — practical spaces for everyday living or straightforward rental use.
Practical running costs and security of tenure are notable strengths: a long lease (around 140 years remaining), an affordable annual service charge of £600 and Council Tax Band C. Outside there is useful understairs storage to the rear and an allocated off-street parking space in the residents’ car park, which adds convenience in this suburban setting.
Known drawbacks are straightforward and factual: this is a leasehold property with a ground rent of £300 per year, and the overall size is average at about 647 sqft. The finish is modern and well presented, but purchasers wanting larger family accommodation or extensive outdoor space should note the maisonette layout and modest garden. Ideal for first-time buyers or investors seeking a low-management home in a low-crime, well-served area.
2 bedroom maisonette for sale in Saxon Way, Great Denham, Bedford, MK40 — £215,000 • 2 bed • 1 bath • 588 ft²
2 bedroom coach house for sale in Saxon Way, Great Denham, Bedford, MK40 — £262,500 • 2 bed • 2 bath • 657 ft²
2 bedroom flat for sale in Clarendon Street, Bedford, Bedfordshire, MK41 — £180,000 • 2 bed • 1 bath • 564 ft²
1 bedroom flat for sale in Nettleton Mews, Shortstown, Bedford, Bedfordshire, MK42 — £160,000 • 1 bed • 1 bath • 471 ft²
2 bedroom flat for sale in Nightingale Road, Great Barford, MK44 — £220,000 • 2 bed • 1 bath • 725 ft²
2 bedroom apartment for sale in Saxon Way, Great Denham, Bedford, MK40 — £200,000 • 2 bed • 1 bath • 582 ft²






















































