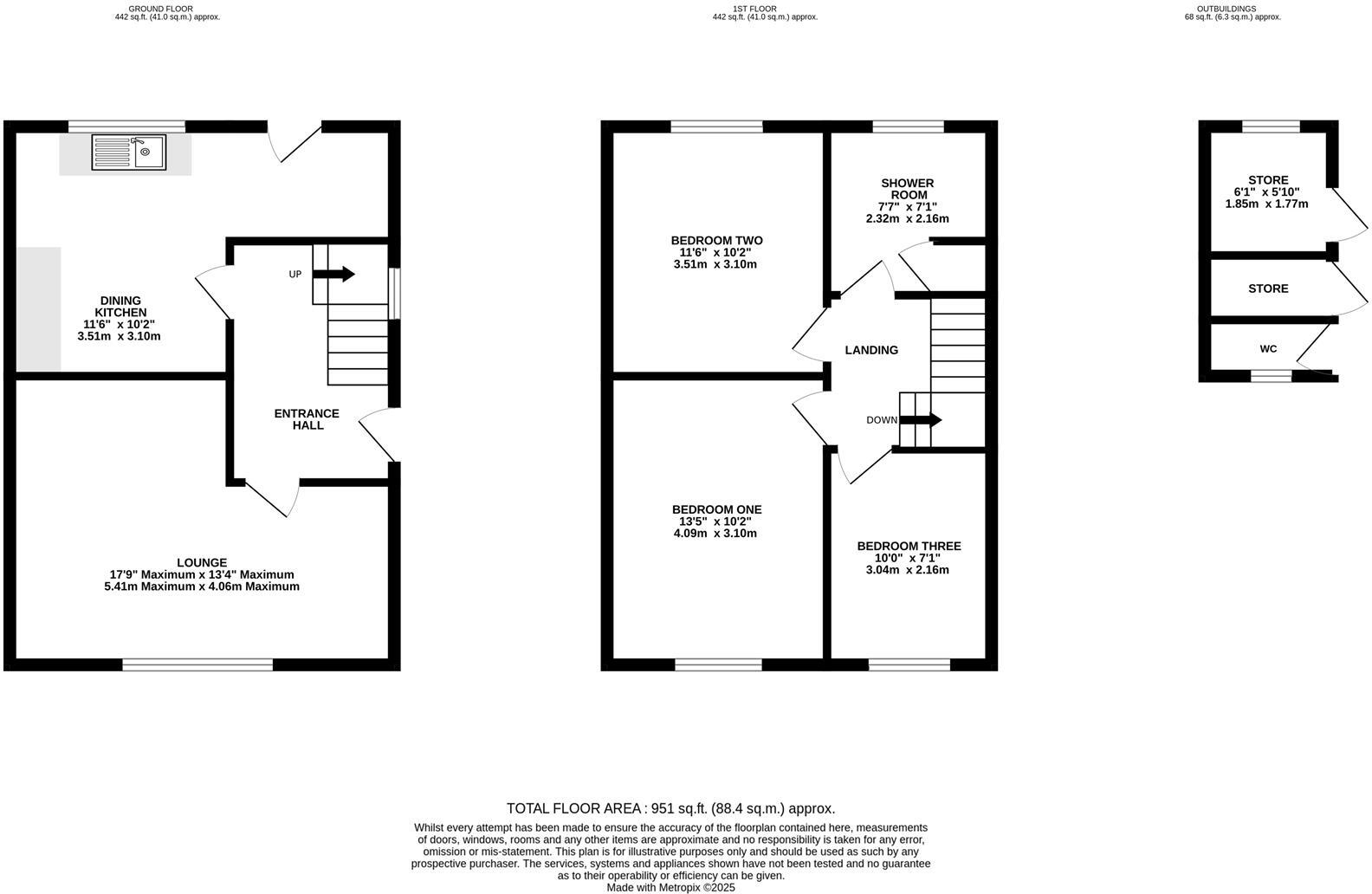
**Standout Features:**
- Three bedrooms and a large shower room
- Open plan dining kitchen ideal for family gatherings
- Beautifully landscaped garden with outdoor storage
- Off-road parking and excellent transport links
- Freehold ownership, chain-free sale
- Location offers a range of amenities including schools, shops, and leisure activities
**Potential Downsides:**
- Average size property, may not suit large families
- Appliances and central heating system have not been tested
Nestled in the desirable area of Keepers Lane in Weaverham, this charming three-bedroom end-terraced property offers over 950 sqft of inviting living space, perfect for families or first-time buyers. The open plan dining kitchen flows into a separate living room, while the beautifully landscaped garden provides a tranquil outdoor retreat complete with storage. Enjoy off-road parking and the convenience of being just minutes away from essential amenities such as schools, shops, and green spaces, ensuring a comfortable and connected lifestyle.
With easy access to the M56 and nearby train stations, commuting to Chester, Liverpool, and Manchester is a breeze. This property is not only beautifully maintained but also offers great potential for future upgrades. Don't miss your chance to secure a home in this sought-after village; viewing is highly recommended!
3 bedroom end of terrace house for sale in Weaver View, Northwich, CW8 — £200,000 • 3 bed • 1 bath • 1141 ft²
3 bedroom terraced house for sale in Briar Lane, Weaverham, CW8 — £180,000 • 3 bed • 1 bath • 876 ft²
3 bedroom terraced house for sale in St Marys Avenue, Weaverham, CW8 — £170,000 • 3 bed • 1 bath • 1137 ft²
3 bedroom terraced house for sale in Keepers Lane, Weaverham, CW8 — £250,000 • 3 bed • 1 bath • 881 ft²
3 bedroom house for sale in Leigh Way, Weaverham, Northwich, CW8 — £275,000 • 3 bed • 1 bath • 1077 ft²
3 bedroom semi-detached house for sale in Wood Lane, Weaverham, CW8 — £215,000 • 3 bed • 1 bath • 954 ft²


































































































