Large plot, approved extension plans and no onward chain — ideal for a growing family..
- Substantial detached 5-bed house on a large, secluded plot
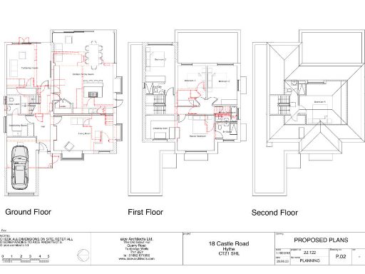
- Planning approved for side, rear and attic extensions (ref 23/1028/FH)
- Generous 115 ft rear garden backing onto Eaton Lands
- Integral double garage, attic room above and ample driveway parking
- Two reception rooms plus kitchen/breakfast and utility room
- Requires general updating and renovation throughout
- Cavity walls likely uninsulated; secondary works may be needed
- No onward chain; council tax band described as expensive
Set on a large, secluded plot on the cusp of Saltwood, this substantial 5-bedroom detached house offers a rare family opportunity close to highly regarded schools and Hythe town centre. The current layout provides two reception rooms, a kitchen/breakfast room, ground-floor bedroom with wet room and four first-floor bedrooms — comfortably proportioned and ready for modernisation. A deep rear garden (about 115 ft) backs onto Eaton Lands and benefits from a sunny aspect and privacy.
Significant value is already in place: generous frontage with ample driveway parking, an integral double garage with attic room above, and planning permission approved for side and rear extensions, internal reconfiguration and an attic extension (planning ref 23/1028/FH). These consents make the property ideal for a growing family seeking extra living space or for buyers wanting to add value through extension and refurbishment.
The house has been well cared for but does require updating throughout; general modernisation and potential insulation work are recommended. Heating is mains gas with boiler and radiators; glazing is double-glazed (install date unknown). Council tax is described as expensive. There is no onward chain, which supports a quicker, less complicated purchase.
Location is a major asset: a short walk to Saltwood village amenities, two strong primary schools nearby and excellent secondary options, including two selective grammar schools. Commuting is straightforward with fast links to the M20, Sandling station and high-speed services to London within easy reach, making this a practical family home with scope to create a long-term, bespoke residence.
4 bedroom detached house for sale in Hythe/Saltwood, CT21 — £795,000 • 4 bed • 1 bath • 1626 ft²
5 bedroom detached house for sale in Hythe/Saltwood, CT21 — £750,000 • 5 bed • 1 bath • 1690 ft²
5 bedroom detached house for sale in Hythe/Saltwood, CT21 — £775,000 • 5 bed • 2 bath • 2199 ft²
4 bedroom semi-detached house for sale in Deedes Close, Hythe, CT21 — £675,000 • 4 bed • 2 bath • 1593 ft²
6 bedroom detached house for sale in Seaton Avenue, Hythe, Kent, CT21 — £770,000 • 6 bed • 1 bath • 2459 ft²
4 bedroom detached house for sale in Castle Road, Hythe, CT21 — £1,295,000 • 4 bed • 5 bath • 3452 ft²






















































































































































