Ideal starter property near schools, retail and commuter routes.
Three bedrooms, master bedroom with private en-suite
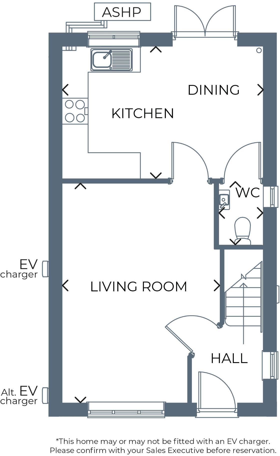
The Brandon is a compact three-bedroom detached new build offering practical, low-maintenance living for first-time buyers. The ground floor features a modern kitchen-diner with French doors to a rear garden, a separate living room and a downstairs WC — practical everyday spaces designed for family life and entertaining.
Upstairs there are three bedrooms, including a master with a private en-suite, plus a family bathroom. The specification draws on recognised brands and includes a 10-year warranty (first two years with the builder, then eight years with NHBC), providing added peace of mind for new owners.
Plot and internal sizes are modest (approximately 686 sq ft) so the layout suits buyers seeking manageable space rather than large family accommodation. Broadband speeds in the area are reported as very slow, which could affect home working; mobile signal is excellent. The property is leasehold — check lease length and any associated service charges before purchase.
This development sits close to Scunthorpe amenities, schools and commuter routes (M181/M180) and includes private driveway parking and rear garden. Overall the Brandon is a sensible, modern starter property with warranty cover and straightforward maintenance needs, best suited to first-time buyers or downsizers comfortable with compact living.
3 bedroom detached house for sale in Phoenix Avenue, Phoenix Park Way,
Scunthorpe,
DN15 8NH, DN15 — £109,998 • 3 bed • 1 bath • 631 ft²
3 bedroom detached house for sale in Phoenix Avenue, Phoenix Park Way,
Scunthorpe,
DN15 8NH, DN15 — £223,995 • 3 bed • 1 bath • 740 ft²
3 bedroom detached house for sale in Phoenix Avenue, Phoenix Park Way,
Scunthorpe,
DN15 8NH, DN15 — £194,995 • 3 bed • 1 bath • 589 ft²
4 bedroom detached house for sale in Phoenix Avenue, Phoenix Park Way,
Scunthorpe,
DN15 8NH, DN15 — £260,995 • 4 bed • 1 bath • 843 ft²
4 bedroom detached house for sale in Phoenix Avenue, Phoenix Park Way,
Scunthorpe,
DN15 8NH, DN15 — £249,995 • 4 bed • 1 bath • 793 ft²
3 bedroom semi-detached house for sale in Phoenix Avenue, Phoenix Park Way,
Scunthorpe,
DN15 8NH, DN15 — £174,995 • 3 bed • 1 bath • 616 ft²














































