Approved plans for a modern three-bedroom town house with parking and garden.
Freehold building plot with full planning and reserved matters approved
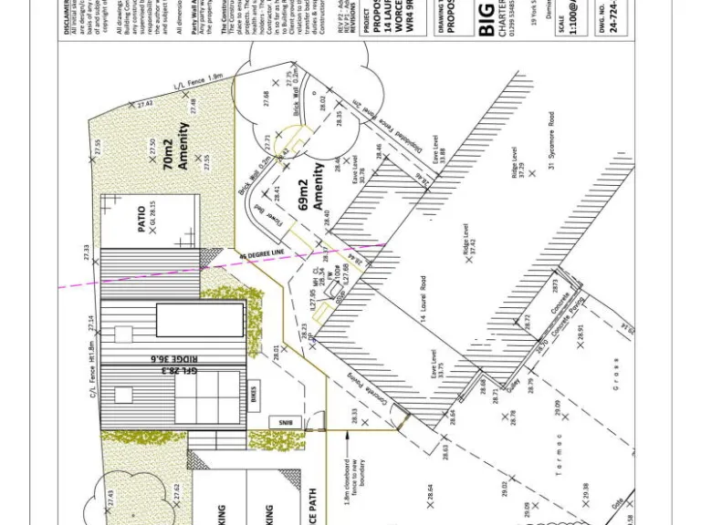
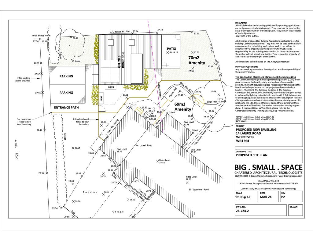
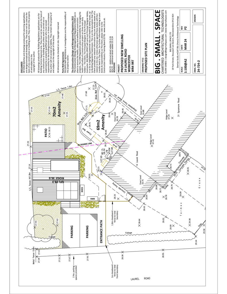
A large freehold building plot to the rear of 14 Laurel Road with full planning consent and reserved matters approved for a modern three-bedroom detached townhouse (Planning No. 23/00832/OUT; RM No. 24/00220/RM). The scheme allows a three-storey dwelling with two off-street parking spaces and a private garden, benefitting from far-reaching views over Worcester.
This opportunity suits a developer or self-builder who can deliver the approved design; the site is cleared for construction but will require appointment of a contractor and all usual build costs. Utility service information and site-specific build constraints are not provided here and should be checked before purchase.
Location advantages include fast broadband, excellent mobile signal and a cluster of local schools rated Good by Ofsted. The plot sits in a convenient residential area with nearby amenities and public transport links.
Buyers should note some material context: the local area records above-average crime and high deprivation indices. These factors will influence rental demand, resale values and required security measures, so they should be considered in feasibility and financing assessments.
Plot for sale in Drake Avenue, Worcester, WR2 — £95,000 • 3 bed • 2 bath
Land for sale in Building Plot 3 Wescoe Newland Lane Newland Droitwich, Worcestershire, WR9 7JH, WR9 — £275,000 • 1 bed • 1 bath • 8276 ft²
Plot for sale in Racks Lane, Ombersley, Droitwich, WR9 — £190,000 • 2 bed • 1 bath • 1034 ft²
Plot for sale in Plots @ Upper Moor, Pershore, WR10 2JR, WR10 — £695,000 • 1 bed • 1 bath
Residential development for sale in Crossway Green, Stourport-on-Severn, DY13 — £125,000 • 3 bed • 2 bath
Residential development for sale in The Pines, Bilford Road, Worcester, West Midlands, WR3 8PU, WR3 — £500,000 • 1 bed • 1 bath














