**Standout Features:**
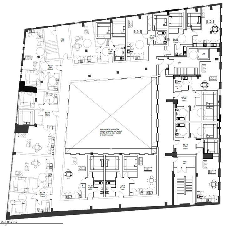
- Planning permission pending for 20 residential apartments
- Large property size of 19,159 sq. ft.
- Prominent town center location in Wrexham
- Flexible internal spaces with accessible floor plans
- Freehold with vacant possession
**Potential Concerns:**
- Former retail space may require substantial renovation
- High local crime rate could affect investment potential
- Located in a deprived area which might influence rental desirability
**Summary:**
Discover an exceptional development opportunity at 9-11 Regent Street, Wrexham, offering a substantial 19,159 sq. ft. of upper storeys primed for transformation into 20 residential apartments. With planning permission pending, this centrally-located property sits in the heart of a bustling shopping street, making it ideal for communal living spaces. Originally built in the late 1980s, the solid concrete structure features generally open-plan areas with escalator access and subdivided workshop spaces on the second floor.
While the expansive layout provides a blank canvas for innovative renovations, potential buyers should be aware that the property requires refurbishment and is situated in an area noted for high crime rates and economic deprivation. Nevertheless, the fast broadband speeds, diverse amenities within walking distance, and the ability to create unique living accommodations in a vibrant city makes this an attractive investment for developers or first-time property investors looking to capitalize on the growing demand for housing in urban centers. Act swiftly to seize this promising opportunity!
High street retail property for sale in Retail Investment Opportunity, Street Level 9-11 Regent Street, Wrexham, LL11 — £600,000 • 1 bed • 1 bath • 20413 ft²
Property for sale in High Street, Wrexham, LL13 — £300,000 • 1 bed • 1 bath
Detached house for sale in High Street, Wrexham, LL13 — £375,000 • 1 bed • 1 bath • 2131 ft²
Detached house for sale in Argyle Street, Wrexham, LL11 — £300,000 • 1 bed • 1 bath • 1701 ft²
High street retail property for sale in Street Level Retail Investment , 50 - 54 Regent Street & 3 King Street , Wrexham, LL11 — £600,000 • 1 bed • 1 bath • 5057 ft²
High street retail property for sale in 4 and 4A Chester Street, Wrexham, Wrexham, LL13 — £190,000 • 1 bed • 1 bath • 1241 ft²














