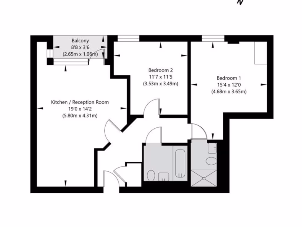
**Standout Features:**
- Modern two-bedroom, two-bathroom apartment
- Spacious open-plan living area with balcony
- En-suite master bedroom and a sleek family bathroom
- Underfloor heating for comfort
- Concierge services and landscaped communal gardens
- Excellent transport links: 0.4 miles from Colindale Underground Station (Northern Line)
- Close to diverse amenities, including Bang Bang Oriental Food Hall
**Potential Concerns:**
- Leasehold with 991 years remaining
- Annual service charge of £4,000 and ground rent of £300
- Small overall size of 587 sq ft
Discover this stunning two-bedroom apartment, perfect for young families or first-time buyers looking for a contemporary living experience. With a generous layout featuring two double bedrooms—one with an en-suite shower room—this home ensures comfort and privacy. The open-plan living area is bathed in natural light and opens onto a sizable balcony, ideal for enjoying peaceful garden views.
Conveniently located in the vibrant NW9 postcode, residents can indulge in a rich variety of local amenities, including diverse supermarkets and top-rated dining options. With superb transportation links just minutes away, commuting to Central London is a breeze. Although the apartment comes with a service charge and ground rent, it offers a low-crime environment and excellent broadband speeds, making it a solid investment for both current living and future resale potential. Don't miss out on this exclusive opportunity to secure a modern urban retreat in a thriving community!
2 bedroom apartment for sale in Bree Court, 46 Capital Way, London, NW9 — £390,000 • 2 bed • 1 bath • 651 ft²
2 bedroom apartment for sale in Eastern Point, Edgware Road, NW9 — £425,000 • 2 bed • 2 bath • 828 ft²
2 bedroom apartment for sale in Harvil Court, Mornington Close, Colindale Avenue, London, NW9 — £400,000 • 2 bed • 2 bath • 754 ft²
2 bedroom apartment for sale in Cara House, Capitol Way, London, NW9 — £375,000 • 2 bed • 2 bath • 646 ft²
2 bedroom apartment for sale in Grove Park, London, NW9 — £400,000 • 2 bed • 2 bath • 755 ft²
2 bedroom apartment for sale in Capitol Way, London, NW9 — £370,000 • 2 bed • 2 bath • 700 ft²














































































































