Open-plan family living on a large plot with countryside close to Durham.
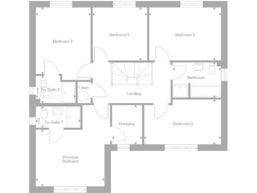
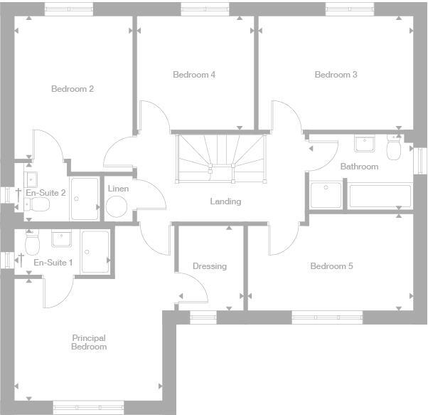
5 bedrooms including principal suite with dressing area and en suite
Open-plan kitchen/dining/family room with French doors to garden
Separate lounge with feature bay window and abundant natural light
Integral single garage, driveway parking and large rear plot
10-year NHBC warranty; energy-efficient new-build design
Annual service charge £139; confirm scope and review period
Slow local broadband speeds; mobile signal is excellent
Tenure details not confirmed—buyers should verify
A modern five-bedroom detached house designed for family life, set on a large plot at Windlestone Point in Chilton. The ground floor centres on a generous open-plan kitchen, dining and family room with French doors to the rear garden, plus a separate lounge with a feature bay window that brings natural light. Practical additions include an integral single garage, driveway parking and a separate utility and downstairs WC.
The first floor provides an impressive principal suite with dressing area and en suite, a second guest bedroom with en suite and three further bedrooms served by a family bathroom. The home benefits from new-build energy-efficient design and a 10-year NHBC warranty, which should reduce immediate maintenance and running costs compared with older stock.
Location is a strong selling point: peaceful, semi-rural surroundings with open countryside views, yet only about a ten-minute drive to Durham city centre and easy access to the A1(M). Local schools are highly rated, making this development especially appropriate for families.
Notable practical points: broadband speeds in the area are reported as slow, and an annual service charge of £139 applies. Tenure detail is not confirmed in the supplied information. Buyers should confirm final council tax banding and any developer incentives or reservation terms before committing.
5 bedroom detached house for sale in Off West Chilton Terrace East,
Chilton,
DL17 0EH, DL17 — £350,000 • 5 bed • 1 bath • 1019 ft²
4 bedroom detached house for sale in Off West Chilton Terrace East,
Chilton,
DL17 0EH, DL17 — £280,000 • 4 bed • 1 bath • 816 ft²
3 bedroom detached house for sale in Off West Chilton Terrace East,
Chilton,
DL17 0EH, DL17 — £250,000 • 3 bed • 1 bath • 551 ft²
4 bedroom detached house for sale in Off West Chilton Terrace East,
Chilton,
DL17 0EH, DL17 — £310,000 • 4 bed • 1 bath • 878 ft²
4 bedroom detached house for sale in Off West Chilton Terrace East,
Chilton,
DL17 0EH, DL17 — £330,000 • 4 bed • 1 bath • 895 ft²
5 bedroom detached house for sale in Off West Chilton Terrace East,
Chilton,
DL17 0EH, DL17 — £360,000 • 5 bed • 1 bath • 1019 ft²










































































































