KT23 3PZ - 3 bedroom detached house for sale in The Spinney, Bookham,…

View on Property Piper

3 bedroom detached house for sale in The Spinney, Bookham, KT23

Summary - 21, THE SPINNEY KT23 3PZ

3 bed 2 bath Detached

**Standout Features:**
- No onward chain
- Detached 3-bedroom house with ensuite shower to master
- Spacious southerly aspect garden (55ft x 32ft)
- Conservatory with garden views
- Attached garage and off-street parking
- Located in a quiet cul-de-sac

**Potential Concerns:**
- Built in 1965; may require modern updates
- Limited public transportation options nearby

Discover a charming three-bedroom detached home nestled in a peaceful cul-de-sac off Eastwick Drive, perfect for families seeking a spacious and inviting abode. This well-preserved property boasts a sunny southerly aspect garden, complete with a large paved terrace and meticulously maintained lawn, ideal for outdoor living and entertaining. Inside, enjoy a thoughtfully arranged layout with an inviting living room, separate dining space, and a delightful conservatory that maximizes garden views.

With three ample bedrooms, including a master with an ensuite shower, this residence accommodates growing families comfortably. The attached garage and private driveway provide convenient off-street parking, enhancing the home’s practicality.

Constructed in 1965, it offers ample space for future renovations to truly make it your own, while living in a highly desirable area with excellent schools nearby. Don't miss this unique opportunity—this property won’t last long in this sought-after market!

Property Details

Brochure Descriptions

Image Descriptions

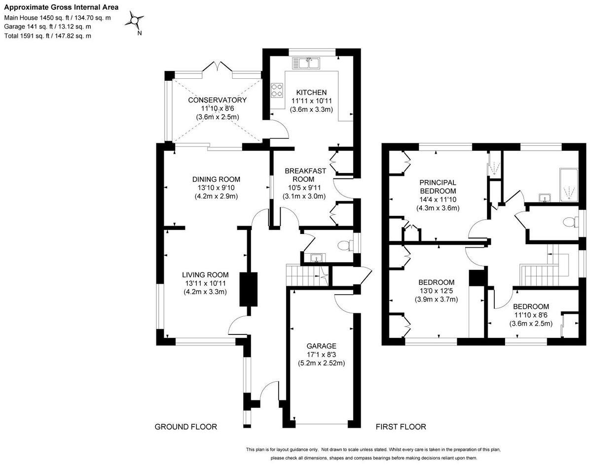
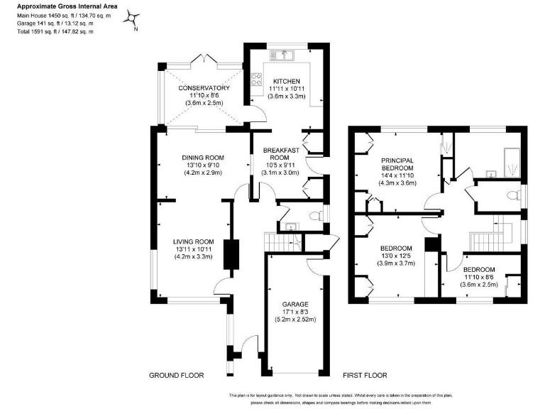
Floorplan Description

Rooms

Textual Property Features

Detected Visual Features

EPC Details

Nearby Schools

Nearest Bars And Restaurants

,,,,}

Nearest General Shops

,,}

Nearest Grocery shops

,,}

Nearest Supermarkets

,,}

Nearest Religious buildings

,,}

Nearest Medical buildings

,,,}

Nearest Airports

,}

Nearest Leisure Facilities

,,,,}

Nearest Tourist attractions

,,}

Nearest Train stations

,,,,}

Nearest Bus stations and stops

,,,,}

Nearest Hotels

,,}

Tags

Local Market Stats

AirBnB Data

Similar Properties

Meta

High Res Images

Compatible Images

Low res Images

Thumbnails

Raw Images

High Res Floorplan Images

Compatible Floorplan Images

Low res Floorplan Images

FloorplanImages Thumbnail

Raw Floorplan Images