Affordable first home or rental near transport links and local schools.
- Chain-free freehold three-bedroom mid-terrace
- Energy rating C; mains gas boiler and radiators
- Small rear garden, suitable for entertaining or children
- Rooms are modest to average in size throughout
- Cavity walls with no confirmed added insulation
- Local area: above-average crime and high deprivation
- Excellent transport links to Strood/Rochester and M2/A228
- Single bathroom; may need modernising for some buyers
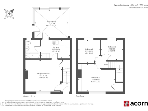
A straightforward three-bedroom mid-terrace on Darnley Road offered chain-free and freehold — an accessible entry point for a first-time buyer or a buy-to-let investor. The ground floor provides a living room, kitchen and conservatory that open onto a rear garden; three modest bedrooms and a single bathroom occupy the first floor. Living spaces are typical for a 1950s/60s terrace: compact but usable.
The home benefits from an Energy Performance Rating of C and mains gas central heating, and it faces a communal green at the front. Local amenities are close by — Strood/Rochester transport links, schools with good Ofsted outcomes, supermarkets and everyday services are within easy reach, making commuting and family life convenient.
Buyers should note the neighbourhood context: the area shows higher-than-average crime and significant local deprivation indicators. The property’s walls are typical cavity construction with no confirmed added insulation, and room sizes and the small rear plot limit extension potential without planning. Overall, this is a practical, affordable property that will suit someone seeking a low-entry purchase or a rental purchase, but it may require cosmetic updating and some insulation improvements to maximise comfort and long-term value.
3 bedroom terraced house for sale in Darnley Road, Rochester, Kent, ME2 — £270,000 • 3 bed • 1 bath • 687 ft²
3 bedroom end of terrace house for sale in Darnley Road, Rochester, Kent, ME2 — £250,000 • 3 bed • 1 bath
3 bedroom terraced house for sale in Highlands Close, ROCHESTER, ME2 — £325,000 • 3 bed • 1 bath • 949 ft²
3 bedroom terraced house for sale in Fulmar Road, ROCHESTER, Kent, ME2 — £270,000 • 3 bed • 1 bath • 671 ft²
3 bedroom end of terrace house for sale in Beech Road, Strood, Rochester, ME2 2LR, ME2 — £285,000 • 3 bed • 1 bath • 646 ft²
3 bedroom terraced house for sale in Bingham Road, Frindsbury, ME2 — £270,000 • 3 bed • 1 bath • 926 ft²














































































