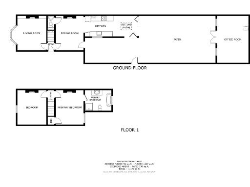
**Standout Features:**
- Stylishly restored late Victorian semi-detached home
- Extended kitchen/diner with dual aspect bi-folding doors
- Home office/studio with potential for conversion to parking
- Generous living areas with log burners and period features
- Close proximity to the beach, town center, and harbor
- Chain-free with a south-facing private garden
**Summary:**
Embrace seaside living in this beautifully renovated Victorian terrace home located in the heart of Whitstable's conservation area. This charming property features an inviting entrance through the original stained glass door, leading to expansive living and dining areas adorned with exposed joists and log burners, ensuring warmth and character. The heart of the home is an extended kitchen and diner, brilliantly designed with dual aspect bi-folding doors that open to a sunny garden oasis, perfect for gatherings or quiet reflection.
Upstairs, discover two spacious double bedrooms, including a principal suite with a luxurious en-suite bathroom featuring a freestanding bath. The second bedroom retains original charm with timber sash windows and a cast iron fireplace. Enjoy the convenience of a home office that offers flexible use and the option for future parking if desired. With the beach just a short stroll away and a vibrant local community filled with shops, dining options, and amenities, this property is a rare find for families or professionals seeking a stylish coastal retreat. Don't miss out on the chance to make this exquisite home yours—seize the opportunity today!
3 bedroom terraced house for sale in Woodlawn Street, Whitstable, CT5 — £420,000 • 3 bed • 2 bath • 934 ft²
3 bedroom terraced house for sale in Sydenham Street, Whitstable, CT5 — £525,000 • 3 bed • 2 bath • 798 ft²
3 bedroom terraced house for sale in Sydenham Street, Whitstable, CT5 — £400,000 • 3 bed • 1 bath • 991 ft²
3 bedroom terraced house for sale in Sydenham Street, Whitstable, Kent, CT5 — £425,000 • 3 bed • 1 bath • 898 ft²
3 bedroom end of terrace house for sale in Albert Street, Whitstable, CT5 — £430,000 • 3 bed • 1 bath • 1088 ft²
3 bedroom terraced house for sale in Albert Street, Whitstable, CT5 — £425,000 • 3 bed • 2 bath • 910 ft²






















































































