Victorian character and flexible living near parks and Brighton centre.
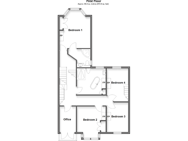
- Five bedrooms plus ground-floor study or sixth room potential
- Large kitchen/breakfast room ideal for family living and entertaining
- Sunny rear garden; small plot overall
- Period features: high ceilings, sash windows, decorative mouldings
- Two bathrooms serving five bedrooms; check layout for busy mornings
- Cavity walls assumed uninsulated; potential energy-efficiency upgrade needed
- Walkable to Brighton centre, station, parks and top-rated schools
- Council tax band above average
Set on Ditchling Road in the sought-after Fiveways area, this deceptively spacious Victorian semi offers flexible rooms designed for modern family life. High ceilings, period features and a large kitchen/breakfast room provide practical everyday living and attractive entertaining space. The sunny rear garden is a welcome outdoor retreat for children and pets, while the home’s layout includes a ground-floor office and an additional reception that could be a sixth bedroom.
Families will appreciate proximity to well-regarded primary and secondary schools, nearby parks, and easy walking access to Brighton city centre and the station. The property’s condition is described as immaculate throughout and is ready to move into, with generous room sizes throughout the 1,425 sq ft footprint.
Practical points to note: the plot is small and the house retains cavity walls with no confirmed insulation (assumed), which may mean future energy-efficiency upgrades. There are two bathrooms for five bedrooms, and council tax is above average. Buyers should verify fittings, services and any historical planning approvals where rooms have been reconfigured.
This home will suit growing families wanting space and period character close to central Brighton, or professional households seeking flexible rooms for working from home. It combines classic Victorian features with sunny outdoor space and an enviable Fiveways location.
5 bedroom terraced house for sale in Ditchling Road, Brighton, BN1 — £875,000 • 5 bed • 1 bath • 1619 ft²
4 bedroom terraced house for sale in Southdown Avenue, BN1 — £875,000 • 4 bed • 2 bath • 1431 ft²
5 bedroom terraced house for sale in Balfour Road, Fiveways, Brighton, BN1 — £800,000 • 5 bed • 2 bath • 1536 ft²
4 bedroom terraced house for sale in Havelock Road, Brighton, East Sussex, BN1 — £850,000 • 4 bed • 2 bath • 1280 ft²
4 bedroom terraced house for sale in Hythe Road, BN1 — £820,000 • 4 bed • 2 bath • 1314 ft²
5 bedroom semi-detached house for sale in Stanford Avenue, Brighton, BN1 — £1,400,000 • 5 bed • 2 bath • 2982 ft²














































































































