**Standout Features:**
- Recently renovated detached bungalow
- Elevated position with scenic countryside views
- Spacious open-plan living area with a log burner
- Versatile family room/study with French doors
- Large garden with updated patio area and vineyard access
- Ample parking with a gravel driveway and detached garage
- Chain-free sale for a quick move
**Potential Concerns:**
- Broadband speeds are slow
- Average mobile signal
- Older construction; assumed no insulation
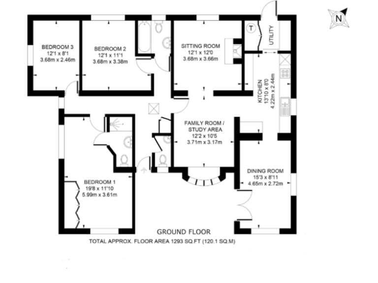
Welcome to this beautifully renovated detached bungalow located on the fringe of Hambledon village, set in a tranquil elevated position with picturesque views across the countryside. Boasting three spacious bedrooms, including a main room with a luxurious en-suite bathroom, this property is perfect for families seeking comfort and versatility. The heart of the home features an open-plan dining area connected to a modern kitchen equipped with integrated appliances, alongside a cozy sitting room that highlights an exposed brick chimney breast and log burner.
Step outside to enjoy the extensive gardens, primarily laid to lawn, coupled with a recently redone patio - a perfect space for outdoor entertaining against a stunning backdrop. Access to the adjacent Hambledon Vineyard enhances the charm, providing a private connection to nature trails and beautiful walks in the South Downs National Park. With average mobile signal and slow broadband, connectivity may require consideration, but this charming home’s inviting atmosphere, practicality, and prime location near esteemed schools make it a compelling prospect. Don’t miss the chance to embrace countryside living away from the hustle and bustle, all in one exquisite package.
3 bedroom semi-detached house for sale in Hambledon, Hampshire, PO7 — £500,000 • 3 bed • 1 bath • 1146 ft²
3 bedroom detached bungalow for sale in Dover Close, Alresford, SO24 — £595,000 • 3 bed • 1 bath • 988 ft²
3 bedroom bungalow for sale in Tilmore Gardens, Petersfield, Hampshire, GU32 — £699,950 • 3 bed • 1 bath • 910 ft²
3 bedroom bungalow for sale in Tunbridge Crescent, Liphook, GU30 — £550,000 • 3 bed • 1 bath • 1092 ft²
4 bedroom bungalow for sale in Winchester Road, West Meon, Petersfield, Hampshire, GU32 — £1,125,000 • 4 bed • 3 bath • 2451 ft²
4 bedroom detached house for sale in The Maltings, Hambledon, Waterlooville, Hampshire, PO7 — £750,000 • 4 bed • 2 bath • 1457 ft²


































































