Generous wrap-around gardens, garage and chain-free sale in sought-after Brownswall Estate.
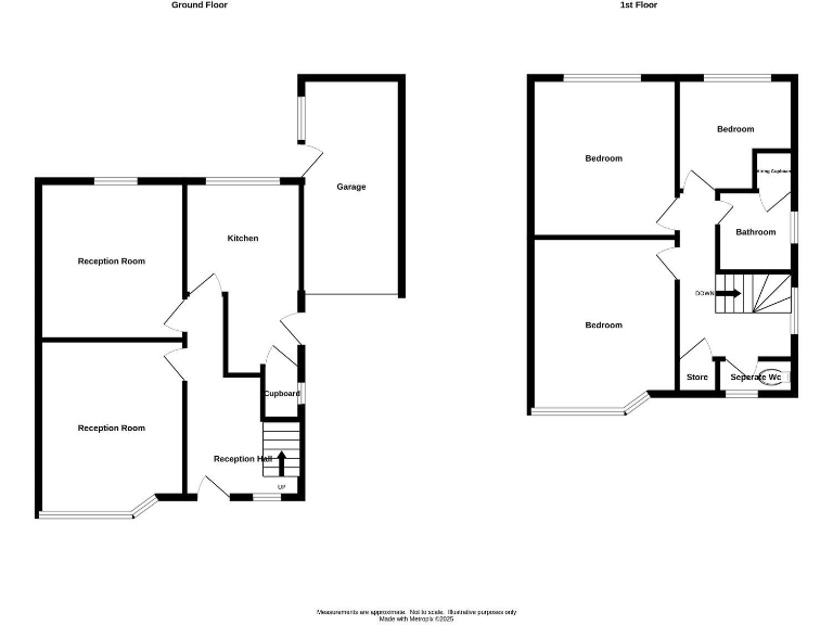
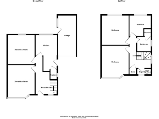
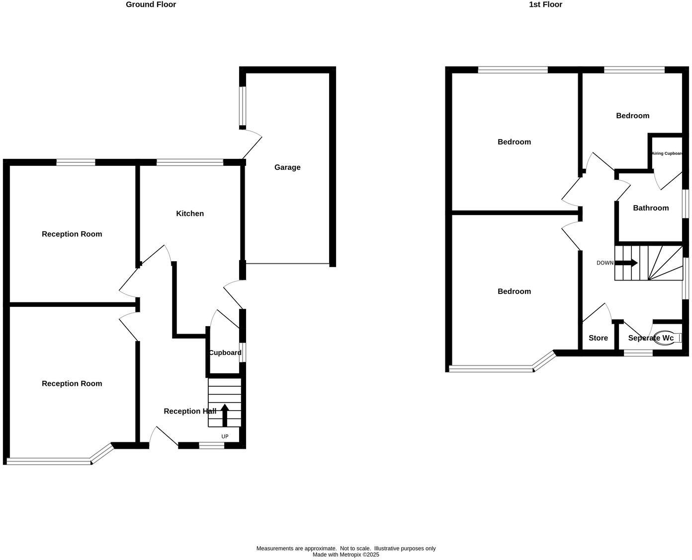
Three-bedroom semi-detached on substantial corner plot
Set on a generous corner plot in a quiet cul-de-sac on the sought-after Brownswall Estate, this three-bedroom semi-detached house offers substantial outdoor space and family-friendly layout. The property features a separate lounge and sitting room, a fitted kitchen, garage and driveway — practical for growing families who value outside space and parking. Several well-regarded primary and secondary schools are within easy reach, and local bus links and fast broadband support everyday convenience.
The house is gas‑heated with double glazing and is offered chain free, making it straightforward to move into. The wrap-around rear and side gardens provide excellent scope for children’s play, entertaining or landscaping into a contemporary family garden. At about 1,001 sq ft the accommodation is an average size for the area and sits on a decent plot that enhances privacy and potential for extension subject to consents.
Buyers should note the property’s EPC rating of E and cavity walls that likely lack added insulation, so energy-efficiency improvements could be needed to reduce running costs. The home has one family bathroom plus a separate WC and retains some dated mid‑century fittings and decor — presenting clear scope for modernisation and value-add refurbishment. Overall, this is a practical, well‑located family home with substantial garden potential and straightforward access to local amenities and schools.
3 bedroom detached house for sale in Wenlock Close, Brownswall Estate, Sedgley, DY3 — £299,950 • 3 bed • 1 bath • 905 ft²
3 bedroom semi-detached house for sale in High Arcal Drive, Sedgley, Dudley, DY3 — £260,000 • 3 bed • 1 bath • 632 ft²
3 bedroom semi-detached house for sale in Westfield Road, Sedgley, DY3 — £199,950 • 3 bed • 1 bath • 754 ft²
3 bedroom semi-detached house for sale in Royston Way, SEDGLEY, DY3 3TZ, DY3 — £245,000 • 3 bed • 1 bath • 840 ft²
3 bedroom semi-detached house for sale in Porthkerry Grove, Brownswall Estate, Sedgley, DY3 — £319,950 • 3 bed • 1 bath
3 bedroom semi-detached house for sale in The Vista, SEDGLEY, DY3 1QE, DY3 — £215,000 • 3 bed • 1 bath • 926 ft²


































































































