W5 4BP - 2 bedroom apartment for sale in Carlyle Road, South Ealing,…

View on Property Piper

2 bedroom apartment for sale in Carlyle Road, South Ealing, W5

Summary - 75, CARLYLE ROAD W5 4BP

2 bed 1 bath Apartment

**Standout Features:**
- Two double bedrooms
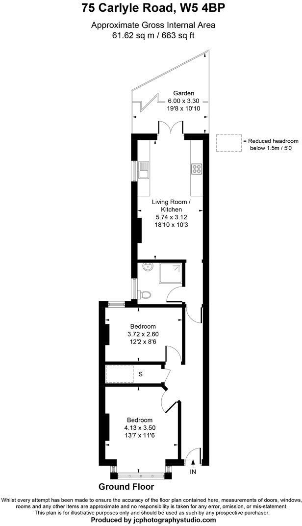
- Private south-facing garden
- Share of freehold
- No onward chain
- Excellent local schools and transport links

Nestled in the highly sought-after residential enclave of 'Little Ealing', this charming two-bedroom ground floor maisonette is perfect for families or young couples seeking comfort and convenience. Enjoy your own private entrance and a south-facing garden, ideal for relaxation and outdoor entertaining. The home features a spacious open-plan lounge/kitchen area with modern units, complemented by French doors leading to the garden, bringing light and air into your living space.

Benefiting from a share of freehold and a chain-free sale, this property is ready for you to move in and personalize to your taste. With excellent local schools such as Mount Carmel and Little Ealing Primary, alongside quick access to South Ealing and Northfields stations, it caters perfectly to commuters with a family-friendly lifestyle. Note, the property has a solid brick construction with no insulation, so some may consider future renovations for enhanced energy efficiency. This opportunity won’t last long—schedule your viewing today!

Property Details

Brochure Descriptions

Image Descriptions

Floorplan Description

Rooms

Textual Property Features

Detected Visual Features

EPC Details

Nearby Schools

Nearest Bars And Restaurants

,,,,}

Nearest General Shops

,,}

Nearest Grocery shops

,,}

Nearest Supermarkets

,,}

Nearest Religious buildings

,,}

Nearest Medical buildings

,,,}

Nearest Airports

,,}

Nearest Leisure Facilities

,,,,}

Nearest Tourist attractions

,,}

Nearest Train stations

,,,,}

Nearest Bus stations and stops

,,,,}

Nearest Hotels

,,}

Tags

Local Market Stats

AirBnB Data

Similar Properties

Meta

High Res Images

Compatible Images

Low res Images

Thumbnails

Raw Images

High Res Floorplan Images

Compatible Floorplan Images

Low res Floorplan Images

FloorplanImages Thumbnail

Raw Floorplan Images