Chain-free Victorian terrace in Revidge — great schools and refurbishment potential..
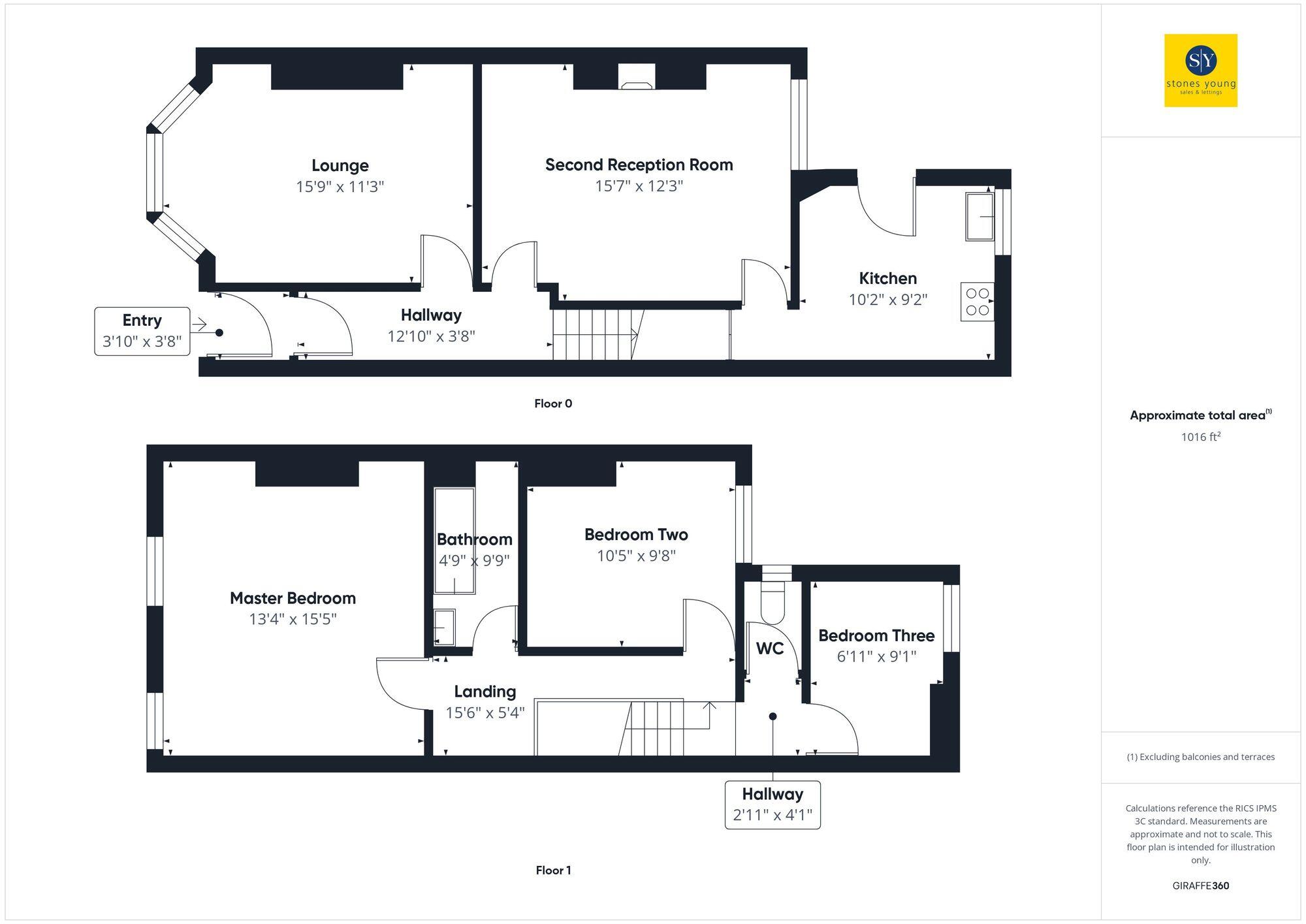
- Three bedrooms with two reception rooms and period fireplaces
- Chain-free sale; long lease remaining (870 years)
- Six-year-old combi boiler and double glazing present
- Front and rear yard; on-street parking only
- EPC rating E; cavity walls likely uninsulated
- Decorative updating and modernization required throughout
- Single family bathroom plus separate w.c.; average sized rooms
- Area: above-average crime and higher local deprivation
A traditional three-bedroom Victorian terraced home in sought-after Revidge, offered chain-free and ready for a new owner to personalise. The house features two bright reception rooms with period fireplaces, a practical kitchen, and a front and rear yard — ideal for families seeking outdoor space in a city location. A six-year-old combi boiler and double glazing provide useful modern basics, while council tax is very low and broadband and mobile signals are strong.
The property does require updating: decorative finishes are dated, and the home would benefit from modernization throughout to unlock its full potential. The cavity walls are assumed uninsulated and the EPC is E, so improving insulation and energy efficiency would reduce running costs. On-street parking is available but there is no off-street parking.
Set close to a range of schools (including several Good and one Outstanding-rated secondary), places of worship and local amenities, this house suits families or buyers wanting long-term rental potential in a diverse community. The long lease (870 years) and chain-free sale make a straightforward purchase possible, but buyers should allow budget for refurbishment and energy upgrades.
3 bedroom terraced house for sale in Revidge Road, Blackburn, Lancashire, BB2 — £185,000 • 3 bed • 1 bath • 1600 ft²
3 bedroom terraced house for sale in Azalea Road, Revidge, Blackburn, Lancashire, BB2 — £155,000 • 3 bed • 1 bath • 1008 ft²
3 bedroom terraced house for sale in Revidge Road, Blackburn, BB1 — £220,000 • 3 bed • 1 bath • 1224 ft²
2 bedroom terraced house for sale in Minnie Terrace, Blackburn, BB2 — £89,950 • 2 bed • 1 bath • 852 ft²
3 bedroom property for sale in Granville Road, Blackburn, BB2 — £249,995 • 3 bed • 1 bath • 2217 ft²
3 bedroom terraced house for sale in Revidge Road, Revidge, Blackburn, Lancashire, BB2 — £190,000 • 3 bed • 1 bath • 1550 ft²






















































