**Standout Features:**
- Charming 2-bedroom cottage in a prestigious location in Richmond.
- Expansive southwest-facing gardens with stunning views of the River Swale and National Trust woodlands.
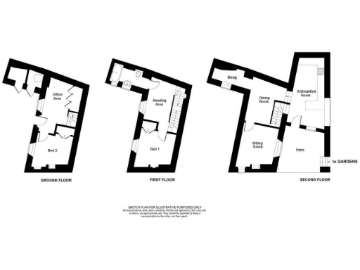
- Versatile living spaces, including an office, snug, and large kitchen/breakfast room.
- Character throughout with exposed stone, wood-burning stoves, and a blend of rustic charm and modern elegance.
- Easy access to Richmond’s amenities, including cafes, shops, and historical attractions.
**Concise Summary:**
Discover this enchanting 2-bedroom cottage nestled in one of Richmond's most sought-after areas, perfectly combining rustic charm and contemporary comfort. The property features a spacious layout with two double bedrooms, a cozy sitting room, and a spectacular kitchen/breakfast room that opens to extraordinary southwest-facing gardens—an ideal retreat for gardening enthusiasts and lovers of nature. Enjoy breathtaking views of the River Swale and easy access to local shops and services just a short walk away.
While the historical appeal and vibrant outdoor space are undeniable, the property's overall size is modest, which may be a consideration for families or those needing additional room for expansion. The well-kept gardens require minimal maintenance, making this cottage not just a home but a lifestyle choice. With strong rental potential and an inviting atmosphere, this home is poised for those looking to enjoy the tranquility and beauty of Richmond living. Don’t miss your chance to experience this unique opportunity—homes like this don’t stay on the market for long!
2 bedroom cottage for sale in Temple Terrace, Richmond, DL10 — £380,000 • 2 bed • 1 bath • 1023 ft²
1 bedroom cottage for sale in Youngs Yard, Richmond, DL10 — £194,950 • 1 bed • 1 bath • 356 ft²
2 bedroom cottage for sale in Parkinsons Yard, Richmond, North Yorkshire, DL10 — £190,000 • 2 bed • 1 bath • 756 ft²
1 bedroom cottage for sale in Cornforth Hill, Richmond, DL10 — £129,950 • 1 bed • 1 bath • 442 ft²
2 bedroom detached house for sale in New Road, Richmond, DL10 — £292,500 • 2 bed • 2 bath • 980 ft²
5 bedroom character property for sale in Maison Dieu, Richmond, DL10 — £650,000 • 5 bed • 4 bath • 2368 ft²


























































































































