**Standout Features:**
- Charming period semi-detached cottage in a conservation area
- Two en-suite bedrooms, ideal for privacy and convenience
- Extended kitchen/breakfast room with French doors to the garden
- Open fireplace in one of the reception rooms
- Off-road parking for one vehicle
- Quiet rural village location near South Downs National Park
**Potential Concerns:**
- Small plot size
- Average broadband and mobile signal reception
- EPC Rating: E, indicating potential energy efficiency improvements
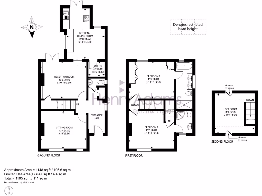
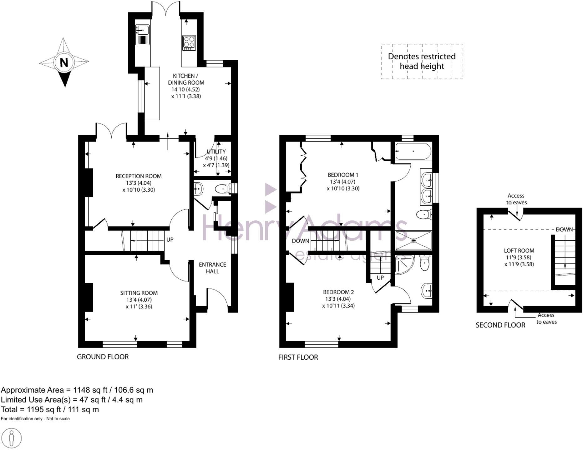
Discover this enchanting two-bedroom semi-detached cottage in the picturesque village of East Ashling, perfectly positioned on the fringes of the South Downs National Park. Boasting period charm and character, this home offers a welcoming entrance hall, two spacious reception rooms—including one with a cozy open fireplace—alongside an extended kitchen/breakfast room, ideal for family gatherings. Each bedroom features its own en-suite, ensuring comfort and convenience for guests or family members.
The south-facing rear garden is a lovely retreat with its small lawn and decking, perfect for outdoor entertaining. While parking is available for one vehicle, you’ll also find local amenities within convenient walking and cycling distance. This property represents a unique opportunity for families seeking a serene village lifestyle without sacrificing modern comforts. With a touch of modernization, this cottage is set to become a delightful sanctuary for its next owner. Don’t miss the chance to own a piece of rural charm—properties like this are in high demand!
2 bedroom semi-detached house for sale in Pook Lane, Chichester, PO18 — £750,000 • 2 bed • 1 bath • 1647 ft²
2 bedroom semi-detached house for sale in Down Street, Chichester, PO18 — £375,000 • 2 bed • 1 bath • 677 ft²
2 bedroom terraced house for sale in East Harting, Petersfield, GU31 — £425,000 • 2 bed • 1 bath • 655 ft²
3 bedroom cottage for sale in Lavant Road, Chichester, PO18 — £599,950 • 3 bed • 3 bath • 1219 ft²
3 bedroom terraced house for sale in Heather Close, West Ashling, Chichester, West Sussex, PO18 — £350,000 • 3 bed • 1 bath • 880 ft²
3 bedroom detached house for sale in Malthouse Lane, West Ashling, Chichester, West Sussex, PO18 — £595,000 • 3 bed • 1 bath • 1169 ft²






































































