Stylish two-bedroom with balcony and commuter convenience in central Paisley.
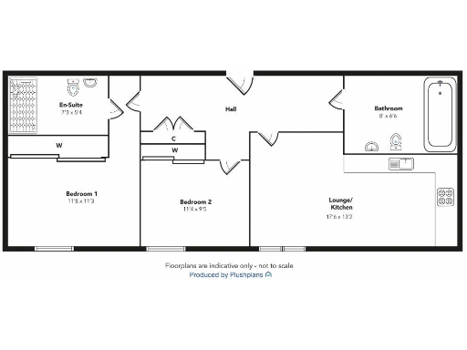
- New-build two-bedroom freehold apartment
- Open-plan living area with balcony and Abbey Mill views
- Main bedroom with en suite; separate luxury bathroom
- Elevator access to every level; low-maintenance communal building
- Walking distance to Gilmour Street station and town amenities
- 678 sq ft; room sizes compact for families
- Local area classed very deprived; possible urban noise and activity
- Fast broadband, excellent mobile signal; no flood risk
A contemporary two-bedroom apartment in The Millhouse, a new five-storey development in the heart of Paisley. The open-plan living area looks toward the Abbey Mill and benefits from a balcony view; the main bedroom includes an en suite and there is a separate bathroom finished with Porcelanosa fittings. Elevator access serves every floor and modern communal design means low maintenance day-to-day.
The apartment is offered freehold and comes with options to pick your own flooring and incentives available, making it well suited to first-time purchasers or buy-to-let investors seeking a ready-to-go city-centre home. Fast broadband and excellent mobile signal support remote working and streaming, and the location is a short walk to Gilmour Street station, bus links and local shops, cafés and amenities.
Buyers should note the local area is classified as very deprived and the town-centre location may bring typical urban noise and activity. The accommodation is average-sized (approximately 678 sq ft) with compact bedroom proportions and an open-plan layout better suited to modern living than large-family use. There is no recorded flood risk, and council tax is moderate.
Overall this apartment offers a turn-key, modern living option with clear commuter appeal and rental potential, balanced by the realities of a compact urban flat in a deprived town-centre neighbourhood.
2 bedroom flat for sale in The Millhouse, 5/1 16 Bridge Street, Paisley, PA1 1FA, PA1 — £270,000 • 2 bed • 2 bath • 1033 ft²
1 bedroom ground floor flat for sale in Flat 1, 3, Oakshaw Street East, Paisley, PA1 2DD, PA1 — £85,000 • 1 bed • 1 bath • 560 ft²
2 bedroom flat for sale in 3/1 Anchor Mill, Thread Street, Paisley, PA1 1JR, PA1 — £230,000 • 2 bed • 2 bath • 872 ft²
2 bedroom flat for sale in Abbey Place, Paisley, PA1 — £190,000 • 2 bed • 2 bath • 828 ft²
2 bedroom flat for sale in Christie Lane, Paisley, Renfrewshire, PA3 — £160,000 • 2 bed • 2 bath • 648 ft²
2 bedroom flat for sale in Printers Place, Paisley, Renfrewshire, PA2 — £205,000 • 2 bed • 2 bath • 780 ft²


















