SO50 6DW - 3 bedroom semidetached house for sale in Stoke Common Road,…

View on Property Piper

3 bedroom semi-detached house for sale in Stoke Common Road, Bishopstoke, SO50

Summary - 1 Stoke Park Farm Cottage, Stoke Common Road, Bishopstoke, EASTLEIGH SO50 6DW

3 bed 1 bath Semi-Detached

**Standout Features:**
- Three spacious bedrooms
- Large kitchen/dining room ideal for family gatherings
- Expansive gardens, approximately 48' x 39' max
- Off-street parking for two vehicles
- Tranquil location backing onto allotments
- Freehold property with no forward chain
- Potential for extension, subject to planning permissions
- Gas central heating and double-glazed windows
- Low crime rate in a very affluent area

**Summary:**
Discover comfort and potential in this charming three-bedroom semi-detached home built in the 1970s, perfectly situated in a peaceful neighborhood with serene allotment views. The spacious living areas, including a large kitchen/dining room ideal for entertaining and family dinners, provide the foundation for creating lasting memories. Enjoy the generous outdoor spaces, including a vast rear garden, perfect for children’s play, gardening, or tranquil relaxation.

With off-street parking and no chain, this freehold property is ready for you to move in and make it your own. The added potential for extending the home offers future flexibility to tailor it to your family’s growing needs. Located in a highly desirable area with excellent schooling options nearby, this home is well-suited for families or first-time buyers seeking a blend of comfort, privacy, and community. Don’t miss out—an opportunity like this won’t last long!

Property Details

Brochure Descriptions

Image Descriptions

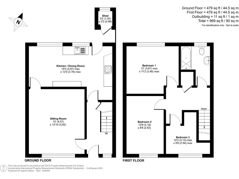
Floorplan Description

Rooms

Textual Property Features

Detected Visual Features

EPC Details

Nearby Schools

Nearest Bars And Restaurants

,,,,}

Nearest General Shops

,,}

Nearest Grocery shops

,,}

Nearest Supermarkets

,,}

Nearest Religious buildings

,,}

Nearest Medical buildings

,,,}

Nearest Airports

}

Nearest Leisure Facilities

,,,,}

Nearest Tourist attractions

,,}

Nearest Train stations

,,,,}

Nearest Bus stations and stops

,,,,}

Nearest Hotels

,,}

Tags

Local Market Stats

AirBnB Data

Similar Properties

Meta

High Res Images

Compatible Images

Low res Images

Thumbnails

Raw Images

High Res Floorplan Images

Compatible Floorplan Images

Low res Floorplan Images

FloorplanImages Thumbnail

Raw Floorplan Images