Compact family home with garage, driveway and easy access to local amenities.
Chain-free three bedroom semi-detached home
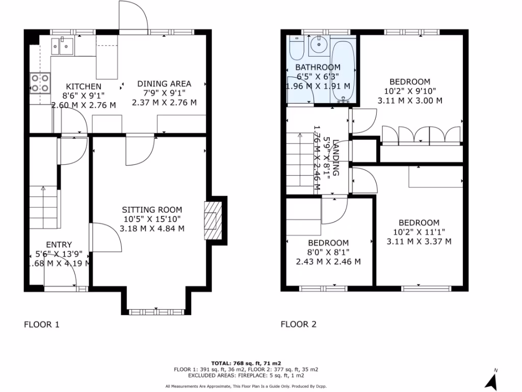
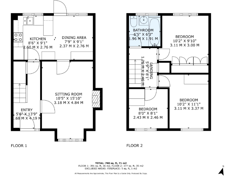
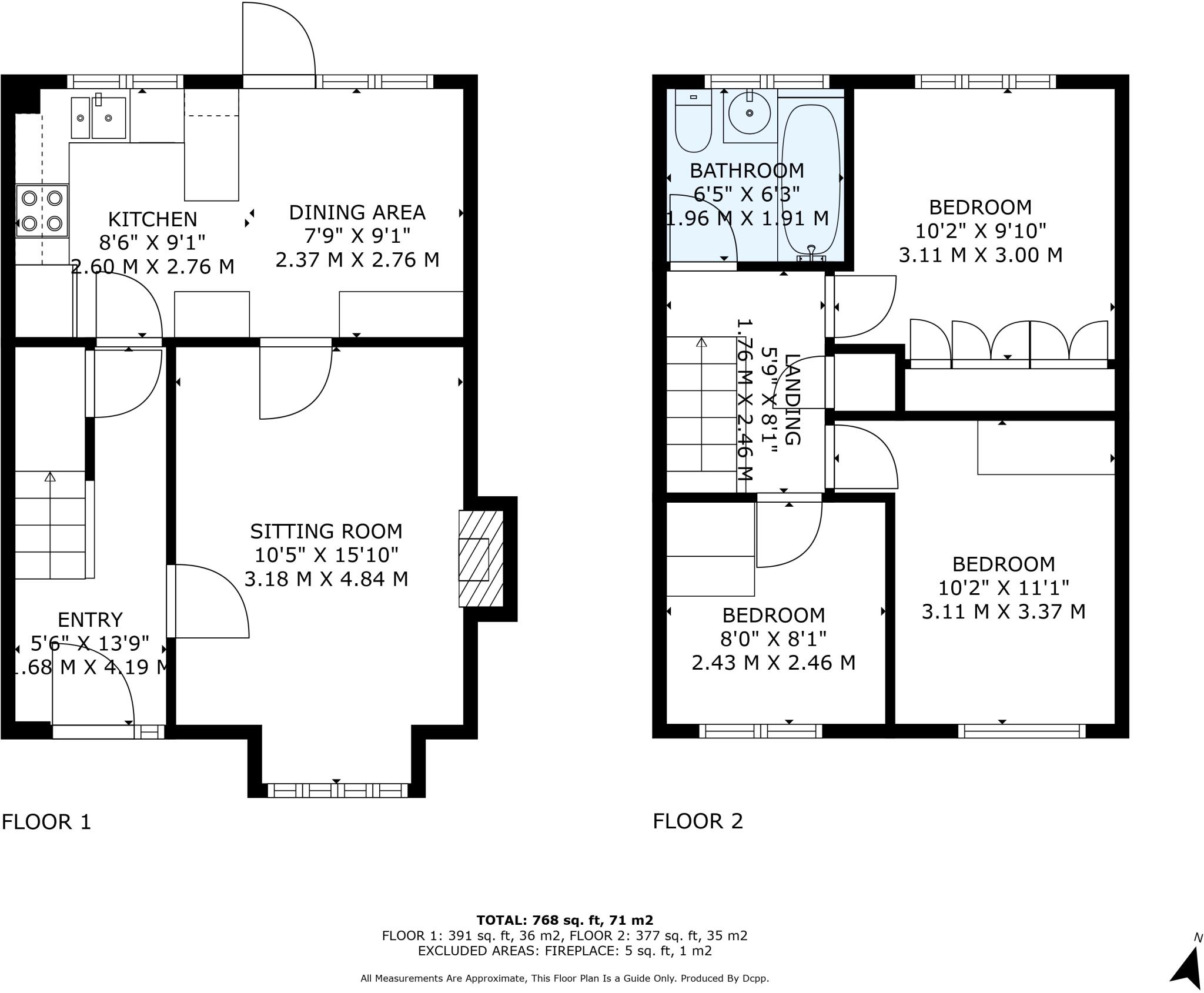
Set on the popular Moreton Hall estate, this chain-free three-bedroom semi presents a straightforward family starter or buy-to-let opportunity. The sitting room enjoys a front box bay and the open kitchen/dining flows to a low-maintenance rear garden with patio and artificial grass. A single garage with power and driveway parking add practical outside space.
At about 768 sq ft the house is compact; two double bedrooms with built-in wardrobes and a smaller third bedroom suit families with young children or those needing a home office. The bathroom is functional with a shower-over-bath and heated towel rail. Double glazing and a gas boiler with radiators provide efficient heating, while fast broadband and good local schools suit modern family life.
The kitchen dates from the 1990s and will suit buyers happy to live with or update it; overall the property is presented with typical 1980s/90s finishes and would benefit from cosmetic modernisation to maximise value. There is no flood risk, tenure is freehold and council tax is described as affordable. Viewing is recommended to assess room sizes and renovation potential on this compact plot.
This home will appeal most to first-time buyers wanting a convenient, well-connected suburb, small families seeking local schools, or investors looking for a straightforward, let-ready property in an affluent area.
3 bedroom semi-detached house for sale in Darcy Close, Bury St Edmunds, IP32 — £300,000 • 3 bed • 1 bath • 734 ft²
3 bedroom semi-detached house for sale in Jermyn Avenue, Bury St. Edmunds, IP32 — £290,000 • 3 bed • 1 bath • 897 ft²
3 bedroom link detached house for sale in Cranesbill Drive, Bury St. Edmunds, IP32 — £325,000 • 3 bed • 2 bath
2 bedroom semi-detached house for sale in Selway Drive, Bury St. Edmunds, IP32 — £240,000 • 2 bed • 1 bath
2 bedroom end of terrace house for sale in Haselmere Close, Bury St. Edmunds, IP32 — £235,000 • 2 bed • 1 bath • 551 ft²
3 bedroom semi-detached house for sale in Manor Ash Drive, Bury St. Edmunds, IP32 — £310,000 • 3 bed • 2 bath • 1109 ft²














































































