Full-project three-bedroom house with large garden and parking near Cambridge North.
Prime Cambridge location near city centre and Science Park
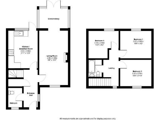
A substantial three-bedroom terraced house in a prime Cambridge location, minutes from the city centre, Cambridge North Station, the Science Park and the M11. The property is a full renovation project throughout, offering clear scope to add significant value through modernisation and possible extension (subject to planning). The front extension added about five years ago provides a practical entrance porch and a ground-floor wet room already fitted with accessible, slip-proof finishes.
Internally the layout is generous for the footprint, with a large living/dining room, conservatory and a sizeable kitchen opening onto an exceptionally large rear garden. The conservatory is double-glazed but the roof needs professional attention; the kitchen and all upstairs rooms require complete refurbishment. The large garden and overall plot offer landscaping potential or space for a rear extension, subject to planning permission.
Practical benefits include off-street parking to the front, freehold tenure and fast local broadband. The area is family-friendly with several well-rated primary and secondary schools nearby, and a broad range of local amenities on Milton Road and surrounding streets. This house will suit investors or builders seeking a refurbishment project, or a family willing to create a bespoke home in a highly sought-after Cambridge neighbourhood.
Buyers should expect a full renovation: mechanical, electrical, cosmetic and garden works will be needed. There is good potential to add value, but the property is presented as a project rather than a move-in-ready home.
3 bedroom terraced house for sale in Kings Hedges Road, Cambridge, CB4 — £375,000 • 3 bed • 1 bath • 840 ft²
3 bedroom terraced house for sale in Milton Road, Cambridge, Cambridgeshire, CB4 — £599,999 • 3 bed • 1 bath • 943 ft²
House for sale in Chesterton Road, Cambridge, Cambridgeshire, CB4 — £1,100,000 • 1 bed • 1 bath • 2631 ft²
3 bedroom terraced house for sale in Kings Hedges Road, CAMBRIDGE, Cambridgeshire, CB4 — £375,000 • 3 bed • 2 bath • 793 ft²
4 bedroom detached house for sale in Union Lane, Cambridge, Cambridgeshire, CB4 — £500,000 • 4 bed • 2 bath • 706 ft²
3 bedroom terraced house for sale in Turpyn Court, Cambridge, CB4 — £375,000 • 3 bed • 1 bath • 1025 ft²






































