**Standout Features:**
- Detached home with spacious layout
- Approximately 1/3 acre garden (TBC), ideal for keen gardeners
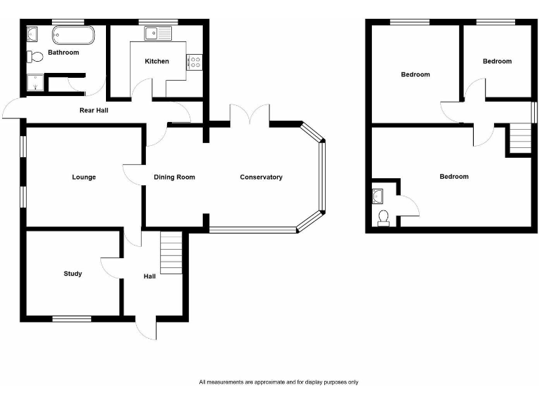
- Three double bedrooms and three reception rooms
- Large conservatory overlooking the rear garden
- Ample off-street parking and detached garage
- Fairly private garden, perfect for outdoor relaxation
- Oil central heating; double glazing throughout
**Potential Concerns:**
- EPC Rating: F, indicating potential energy efficiency upgrades needed
- Property requires modernization to meet contemporary standards
- Located in an area classified as deprived, which may affect future investment
Discover this charming detached family home nestled in Tycroes, which boasts not just space but potential! Spanning approximately a third of an acre, the property includes three generously sized double bedrooms and three versatile reception rooms, ideal for family living or entertaining guests. The large conservatory allows for a seamless flow between indoor and outdoor spaces, making it perfect for enjoying the garden views.
While the property offers an abundance of features, including a detached garage and ample parking, it does present an opportunity for modernization—inviting creative buyers to transform it into their dream home. The low crime area and proximity to essential amenities contribute to a secure, family-friendly environment. With an EPC rating of F, future owners might consider renovations aimed at increasing energy efficiency.
Don’t miss out on this unique opportunity to invest in a spacious home in a tranquil village—schedule your viewing today and envision the possibilities!
3 bedroom detached house for sale in Pontardulais Road, Tycroes, Ammanford, Carmarthenshire., SA18 — £280,000 • 3 bed • 1 bath
3 bedroom detached house for sale in Tycroes Road, Tycroes, SA18 3NS, SA18 — £320,000 • 3 bed • 2 bath • 1163 ft²
2 bedroom detached bungalow for sale in Pontardulais Road, Tycroes, Ammanford, Carmarthenshire., SA18 — £265,000 • 2 bed • 1 bath
4 bedroom detached house for sale in Ffordd Y Deri, Tycroes, Ammanford, SA18 — £379,500 • 4 bed • 2 bath • 1525 ft²
3 bedroom detached bungalow for sale in Tycroes, SA18 — £294,950 • 3 bed • 1 bath • 1246 ft²
3 bedroom semi-detached house for sale in Pontardulais Road, Tycroes, SA18 3QA, SA18 — £189,950 • 3 bed • 1 bath • 705 ft²










































































































