Immaculate duplex penthouse with large roof terrace, parking and garage near Shrewsbury town centre.
- Duplex penthouse with generous accommodation across two floors
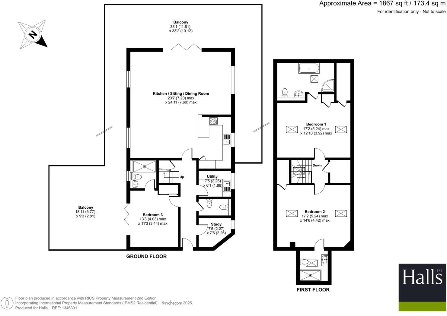
- Large roof terrace ideal for entertaining and alfresco dining
- Private parking space and separate garage included
- Three double bedrooms, all with en-suite facilities
- High local flood risk — investigate insurance and mitigation
- Electric storage heating; may increase winter running costs
- Annual service charge approx. £3,119.09 and £100 ground rent
- Lease information lists c.238 years; confirm tenure and title
A rare duplex penthouse offering exceptionally large accommodation over two floors and a spacious roof terrace, all within walking distance of Shrewsbury town centre. The apartment is presented to a high standard with oak-boarded flooring, a contemporary fitted kitchen with high-spec Neff appliances, and bifold doors that connect the main living space to the terrace for easy indoor/outdoor entertaining.
The layout suits a family or professionals who value space and low-maintenance living: three double bedrooms each with their own en-suite, separate study/utility areas, ample storage and lift access. Private parking and a garage add practical convenience in this attractive, well-served location with riverside walks and good commuter links to the A5/M54.
Notable practical considerations are the high local flood risk and the apartment’s electric storage heating, which may affect running costs. Annual service charge and ground rent are payable (approx. £3,119.09 service charge; £100 ground rent). The legal tenure details reference a long lease (about 238 years remaining) alongside a freehold statement — buyers should confirm the official title and management arrangements during conveyancing.
Overall this is a substantial, low-maintenance home with excellent outdoor and entertaining space, ideal for those seeking a stylish city-centre residence. Viewings recommended for buyers who prioritise space, contemporary finish and proximity to local amenities.
3 bedroom apartment for sale in Longden Coleham, Shrewsbury, SY3 — £250,000 • 3 bed • 1 bath • 1129 ft²
2 bedroom penthouse for sale in Old Coleham Court,
Shrewsbury,
SY3 7BP, SY3 — £629,000 • 2 bed • 2 bath • 980 ft²
2 bedroom apartment for sale in Albury Place, off St. Michaels Street, Shrewsbury, SY1 — £269,950 • 2 bed • 2 bath • 2906 ft²
3 bedroom penthouse for sale in Old Coleham Court,
Shrewsbury,
SY3 7BP, SY3 — £629,000 • 3 bed • 2 bath • 980 ft²
3 bedroom mews property for sale in Abbey Wharf, Mill Road, Abbey Foregate, Shrewsbury, SY2 — £300,000 • 3 bed • 2 bath • 1153 ft²
2 bedroom penthouse for sale in Copthorne Road, Shrewsbury, SY3 — £229,000 • 2 bed • 1 bath • 922 ft²














































































